condition annonces.transactionid=1 and annonces.region =22 and annonces.dept =67 and annonces.cityid =28292 Achat Immobilier Anse | ma-cabane.fr
Mon compte

Achat Immobilier Anse 25 annonces en ligne

MODIFIER MA RECHERCHE  
1 / 6

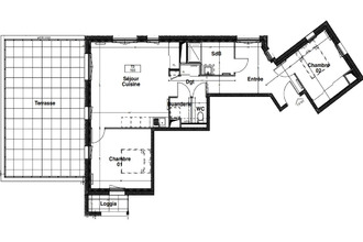
ANSE (69) Appartement

352000 €

73 m²
3 pièces


Créée le: 03/03/2026

Pro / Agence

Voir l'annonce

Derniers biens visités

Vente Appartement 75010, PARIS France

Appartement de 45 m² À PARIS500 000 €

Vente Maison 75019, Paris France

Maison de 84 m² À Paris1 128 000 €

Vente Maison 75012, Paris France

Maison de 153 m² À Paris258 500 €

Vente Maison 02000, LAON France

Maison de 81 m² À LAON180 000 €

Vente Maison 95800, CERGY France

Maison de 124 m² À CERGY468 000 €

Découvrez nos annonces immobilières dans les Top Villes de France

Nos annonces par Départements :
Nos annonces par ville :
- anse
p=achat&t=auvergne-rhone-alpes&r=rhone&v=anse-69&page=3
mcprestation = Achat
mcregion = Auvergne-rhone-alpes
mcdepartement = Rhone
mcville = Anse-69
mctypedebien =
mcsoustypedebien =
mccp =