Vente Maison 91190, Villiers-le-Bâcle france 379 000 €
Descriptif du bien
VILLIERS LE BÂCLE...
Paris Saclay Immobilier : vous propose cette maison de ville, type Triplex de 4 pièces dans cet immeuble entièrement rénover, situé en plein centre de Villiers et proche de toutes commodités (transports, BUS, Futur ligne 18, CEA, grandes écoles Polytechnique, HEC, commerces) ...
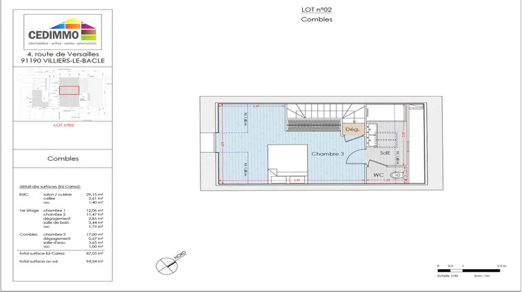
D'une superficie de 84 m2 habitable sur 95m2 au sol, cette maison de ville se compose, au rez-de-chaussée : d'une cuisine / salon de 30m2, cellier, WC. Au premier étage : un dégagement qui dessert deux chambres, une salle d'eau avec WC. Au deuxième étage : combles aménagés en suite parentale comprenant une chambre avec une salle d'eau. Viennent compléter ce bien, deux emplacements de stationnements privatifs extérieurs
À découvrir Rapidement !...
Honoraires à la charge du vendeur. Dans une copropriété de 3 lots. Aucune procédure n'est en cours. DPE vierge. Les informations sur les risques auxquels ce bien est exposé sont disponibles sur le site Géorisques : georisques.gouv.fr.
- Type de bien : Maison
- Surface : 86 m²
- Localisation : France - ile-de-france - Essonne
- Ville : Villiers-le-Bâcle
- Code postal : 91190
- Annonce créée le 23/05/2025





