Vente Maison 91160, SAULX-LES-CHARTREUX france 464 500 €
Descriptif du bien
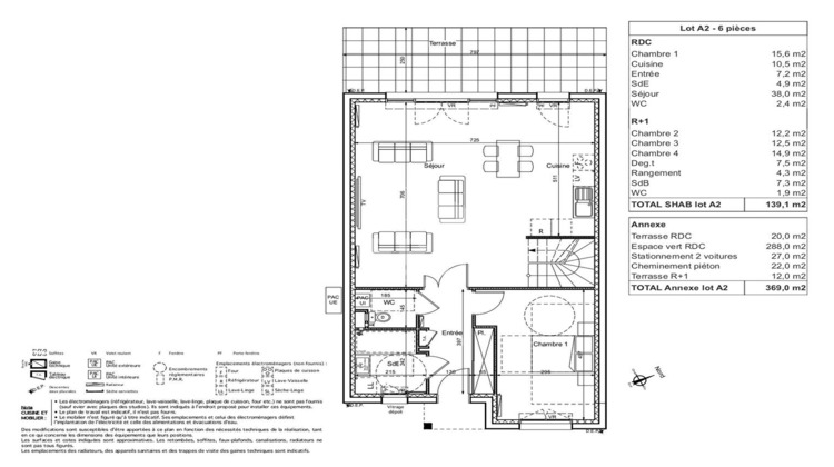
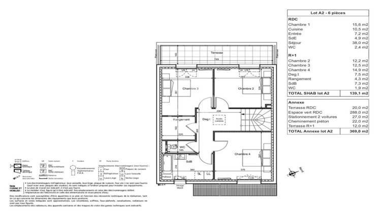
L'agence A la Clef des Champs vous propose sur la charmante commune de Saulx les Chartreux, petit village situé à 25minutes de Paris, en centre ville, une maison en Vente en Etat Futur d'Achèvement ( VEFA ) livrée en fin d'année 2025 sur une parcelle de 340m² environ. . Composée de 6 pièces vous serez séduits par les 139m² habitables comprenant au rez de chaussée : entrée, cuisine US donnant sur un séjour double de 28m² environ ouvrant sur le jardin et une terrasse, une chambre de 15m² environ, salle d'eau et wc. A l'étage : trois belles chambres de 12,2 m², 12,5m² et 14,9m² ainsi qu'une salle de bains et un wc indépendant. A l'extérieur deux emplacements pour voiture. Les écoles primaires ainsi que la rue commerçante de Saulx sont à moins de 10 minutes à pieds. L'ensemble du dossier est disponible en agence. Le prix affiché comprend les honoraires d'agence à la charge de l'acquéreur de 5%.Le prix hors honoraires est de 442 000 euros. L'agence ERA - A La Clef des Champs a fait le choix de rédiger ses mandats de vente avec les honoraires à la charge de l'acquéreur pour plus de transparence envers ses clients mais surtout afin de leur éviter un surplus de droits de mutations (appelés communément frais de notaires). En effet, lorsqu'ils sont à la charge de l'acquéreur, les honoraires ne sont pas soumis aux taxes. (5.09 % honoraires TTC à la charge de l'acquéreur.)
- Type de bien : Maison
- Surface : 139 m²
- Localisation : France - ile-de-france - Essonne
- Ville : SAULX-LES-CHARTREUX
- Code postal : 91160
- Annonce créée le 07/10/2025


