Vente Maison 91340, OLLAINVILLE france 289 000 €
Descriptif du bien
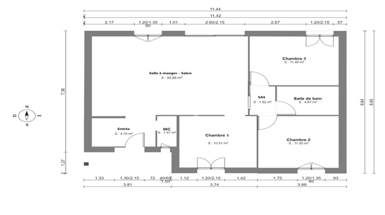
Maison de plain-pied neuve de 80 m² de 5 pièces avec une entrée, un WC, un salon-séjour coin cuisine ouverte avec cellier, trois chambres et une salle de bains, l'ensemble sur un terrain de 550 m² cadastré. Equipements : Pompes à chaleur AIR/AIR, dalle chauffante, volets roulants PVC électriques, carrelage 60x60 et parquet dans les chambres, peintures blanche aux murs, et cuisine à prévoir car maison livrée sans. Un catalogue vous sera transmis pour le choix et couleurs des matériaux. Maison évolutive avec possibilité d'aménager l'étage facilement. Les plans proposés ici peuvent être modifiés. PRIX DE VENTE GARANTIE SANS DEPASSEMENT. Proche écoles, commerces et transports et proche du nouveau éco quartier d'Arpajon/Ollainville. Contactez notre agence L'adresse Arpajon pour plus d'informations. « Les informations sur les risques auxquels ce bien est exposé sont disponibles sur le site GEORISQUES : www.georisques.gouv.fr »
- Type de bien : Maison
- Surface : 80 m²
- Localisation : France - ile-de-france - Essonne
- Ville : OLLAINVILLE
- Code postal : 91340
- Annonce créée le 14/09/2025


