Vente Appartement 31500, TOULOUSE france 419 100 €
Descriptif du bien
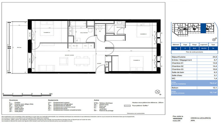
Découvrez ce bel appartement T4 de 80m² situé au deuxième étage avec ascenseur, au coeur de la ville rose. Ce T4 lumineux offre un beau séjour/cuisine de 25m² qui s'ouvre sur un balcon de 12m2 avec une exposition Sud-Ouest, idéale pour un espace extérieur. L'entrée dispose d'un placard, trois chambres qui sont équipées d'un placard mural. Une salle d'eau, une salle de bain et WC complète ce bien. Mobilité exceptionnelle : Vous êtes à proximité du centre ville de Toulouse. Profitez d'une vie de quartier agréable et dynamique, avec commerces, écoles, équipements et espaces verts à proximité immédiate. Contactez-nous dès maintenant pour réaliser votre projet immobilier ! louisronchet@li2ri.fr 0766410963
- Type de bien : Appartement
- DPE : B - 51 à 90 kWh/².an
- GES : B - 6 à 10 kg eq CO2/².an
- Surface : 80 m²
- Localisation : France - Occitanie - Garonne (Haute)
- Ville : TOULOUSE
- Code postal : 31500
- Annonce créée le 03/02/2026



