Vente Appartement 31500, TOULOUSE france 179 000 €
Descriptif du bien
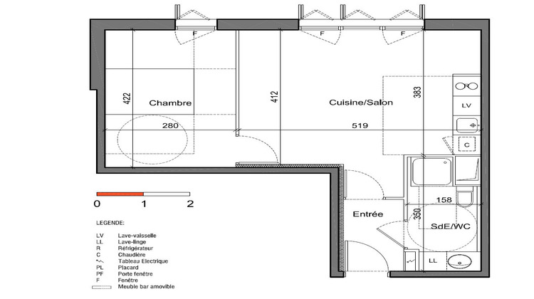
Votre agence Immo de France a le plaisir de vous présenter à la vente cet appartement type 2 en excellent état. Il se compose d'une entrée, un séjour et cuisine ouverte aménagée et équipée d'une surface totale de 22 M2, très lumineux. Une chambre de 12 m2 et une salle de bains avec WC complète ce bien. Aucuns travaux n'est à prévoir. La place de parking est en sous sol et l'accès sécurisé, la copropriété récente est en excellent état. La résidence est classée BBC, récente et sécurisée, située dans un quartier résidentiel du château de l'Hers et à proximité immédiate des commerces, bus et écoles. La résidence est située à proximité immédiate des commerces et des transports (à 5 min à pieds) et à 1km du centre ville de Balma. (7.00 % honoraires TTC à la charge de l'acquéreur.) Copropriété de 92 lots - dont 92 lots habitation. (Pas de procédure en cours). Charges annuelles : 700 euros.
- Type de bien : Appartement
- DPE : C - 91 à 150 kWh/².an
- GES : C - 11 à 20 kg eq CO2/².an
- Surface : 41 m²
- Localisation : France - Occitanie - Garonne (Haute)
- Ville : TOULOUSE
- Code postal : 31500
- Annonce créée le 20/01/2026





