Vente Appartement 31500, TOULOUSE france 317 300 €
1 / 7
Descriptif du bien
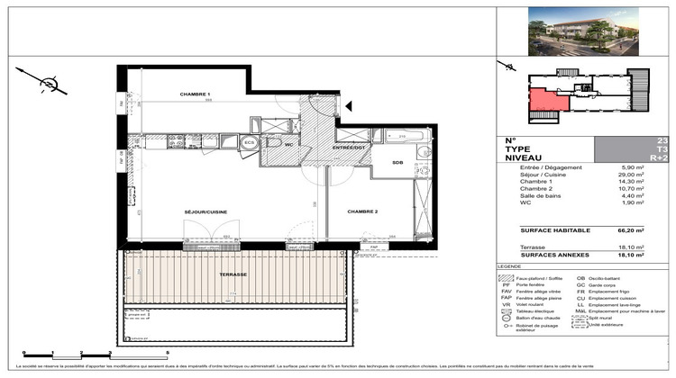
Belle opportunité aux Argoulets ! Accession sous conditions de revenus Secteur calme Venez découvrir ce bel appartement 3 pièces de 66 m² en dernier étage (2ème) Grande terrasse de 18 m² / exposition sud / ouest Espace séjour/cuisine de 29 m² , cuisine équipée 2 chambres avec placard 1 salle de bain avec baignoire WC séparé Chauffage par pompe à chaleur Climatisation dans le séjour Prestations: Cuisine équipée Carrelage 45x45 Parquet dans les chambres Volets roulants électriques Local vélos 1 place de parking en sous-sol Proche des écoles, transports, des commerces et des loisirs
- Type de bien : Appartement
- Surface : 66 m²
- Localisation : France - Occitanie - Garonne (Haute)
- Ville : TOULOUSE
- Code postal : 31500
- Disponible le 19/11/2025
- Annonce créée le 25/11/2025






