Vente Appartement 31400, Toulouse france 60 500 €
Descriptif du bien
Spécial Investisseur Forom® Immobilier
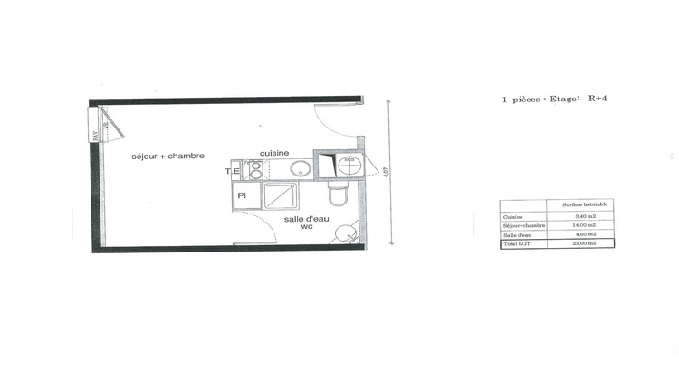
Appartement T1 au 4ème étage d'environ 22 m² avec une rentabilité de 5,36% brute et 4,19% nette.
Le logement dispose d'un séjour-chambre, une kitchenette, une salle d'eau avec un WC.
Loyer entièrement garanti et sécurisé avec un bail commercial, aucune contrainte de gestion, faibles charges.
C'est le produit idéal pour se constituer facilement un patrimoine immobilier.
Loyer annuel HT : 3 245,48 / an soit 270,45 / mois
Rentabilité : 5,36% brute et 4,19% nette !
Charges : 14,51 / mois
Taxe foncière : 498,5 / an
Gestionnaire : Lokora (4/5) avec date de fin de bail le 31/12/2038
Indexation selon l'indice IRL
DPE : C
Nombre de lots : 188
Les avantages
Les loyers sont réglés que le logement soit occupé ou non (sans risque de vacances locatives ou d'impayés).
Vous bénéficiez également d'avantages fiscaux lié au « LMNP amortissable », donnant une exonération d'impôt sur les revenus locatifs.
Aucuns frais de gestion courante (le gestionnaire vous règle directement le loyer sans intermédiaire ni frais de gestion locative).
Emplacement premium bien au-dessous du prix du marché.
La résidence
Située dans le quartier dynamique de Montaudran, la résidence bénéficie d'un accès rapide au métro (ligne B, station Montaudran à 13 min à pied) et est proche des campus universitaires, notamment l'Université Paul Sabatier. Commerces et services sont facilement accessibles, offrant un cadre idéal pour les étudiants.
Honoraires à la charge du vendeur. Dans une copropriété de 188 lots. Aucune procédure n'est en cours. Classe énergie C, Classe climat A Montant estimé des dépenses annuelles d'énergie pour un usage standard : entre 420.00 et 620.00 sur les années 2021, 2022 et 2023 (abonnements compris). Les informations sur les risques auxquels ce bien est exposé sont disponibles sur le site Géorisques : georisques.gouv.fr.
- Type de bien : Appartement
- DPE : C - 91 à 150 kWh/².an
- GES : A -< 6 kg eq CO2/².an
- Surface : 22 m²
- Localisation : France - Occitanie - Garonne (Haute)
- Ville : Toulouse
- Code postal : 31400
- Annonce créée le 13/02/2026





