Vente Appartement 31400, TOULOUSE france 395 000 €
Descriptif du bien
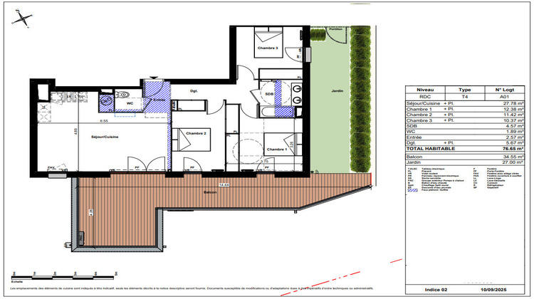
Découvrez ce bel appartement T4 de 77m² situé au rez-de-chaussée proche de la place de l'Ormeau. Ce T4 lumineux offre un beau séjour/cuisine de 28m² qui s'ouvre sur un balcon de 35m², idéale pour un espace extérieur protégé ainsi qu'un jardin avec une exposition Sud-Est. L'appartement vous offre 3 belles chambres avec un placard mural. Une salle de bain avec WC complète ce bien. Deux places de parking en-sous. Belles Prestations : Carrelage 45x45cm, peinture lisse, parquet contrecollé, pompes à chaleur, volets roulants électriques. Mobilité exceptionnelle : Vous êtes à seulement quelques pas de la future ligne C (mise en service prévue en 2028). Profitez d'une vie de quartier agréable et dynamique, avec commerces, écoles, équipements et espaces verts à proximité immédiate. Contactez-nous dès maintenant pour réaliser votre projet immobilier ! louisronchet@li2ri.fr 0766410963
- Type de bien : Appartement
- DPE : B - 51 à 90 kWh/².an
- GES : B - 6 à 10 kg eq CO2/².an
- Surface : 77 m²
- Localisation : France - Occitanie - Garonne (Haute)
- Ville : TOULOUSE
- Code postal : 31400
- Annonce créée le 23/12/2025


