Vente Appartement 31300, TOULOUSE france 374 000 €
Descriptif du bien
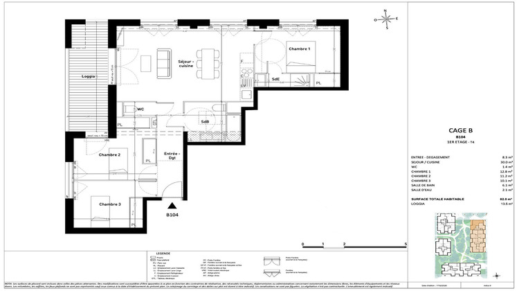
Découvrez ce bel appartement T4 de 82m² avec ascenseur, au coeur du quartier de La Cartoucherie (3ème et dernière phase). Ce T4 lumineux offre un beau séjour/cuisine de 30m² qui s'ouvre sur une loggia de 14m2 avec une exposition plein Ouest, idéale pour un espace extérieur. Trois chambres avec placard, une salle de bain et salle d'eau équipées et WC complète ce bien. Deux places de parking en sous-sol. Mobilité exceptionnelle : Vous êtes à proximité du Tram. Profitez d'une vie de quartier agréable et dynamique, avec commerces, écoles, équipements et espaces verts à proximité immédiate. Contactez-nous dès maintenant pour réaliser votre projet immobilier ! louisronchet@li2ri.fr 0766410963
- Type de bien : Appartement
- DPE : B - 51 à 90 kWh/².an
- GES : B - 6 à 10 kg eq CO2/².an
- Surface : 82 m²
- Localisation : France - Occitanie - Garonne (Haute)
- Ville : TOULOUSE
- Code postal : 31300
- Annonce créée le 24/02/2026



