Vente Appartement 31300, TOULOUSE france 199 900 €
Descriptif du bien
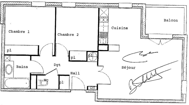
Idéalement situé à PURPAN, dans une résidence calme, sécurisé et avec piscine, découvrez cet appartement lumineux de 58.96 m² ( loi carrez). Cet appartement au 2ème étage d'une résidence de 6 étages est parfait pour un investisseur ou pour un premier achat. Il dispose d'un séjour lumineux donnant sur un balcon avec une cuisine ouverte et équipée, un espace nuit avec 2 chambres confortables, une salle de bain et un wc séparé. Deux places de parking en sous sol complète ce bien. Profitez d'un cadre de vie agréable avec des services à proximité : tous commerces, restaurants, et parcs pour vos moments de détente. De plus, vous serez à proximité des arrêts de tram 'Arènes Romaines' et 'Ancely', facilitant vos déplacements dans la ville. L'appartement est vendu avec un locataire en place Emplacement stratégique, pôle de santé majeur, CHU, Purpan, facultés et écoles, excellente accessibilité, tramway, bus, axes routiers et future ligne C du métro ! Vie de quartier complète, commerces, services, espaces verts. «Les informations sur les risques auxquels ce bien est exposé sont disponibles sur le site Géorisques: www.georisques.gouv.fr » (C. envir., art. R. 125-25, I) Pour plus de renseignements, contactez notre conseiller Eva TURLURE au 06.36.49.56.01 Ce bien est proposé par Saphir Immobilier, fort de 30 ans d'expérience dans l'immobilier toulousain retrouvez nos annonces sur notre site. Spécialiste dans la vente et la location à Toulouse : Purpan, Ancely, Cartoucherie, Bourrassol, Casselardit, St Cyprien, Patte d'Oie, Minimes, Sept Deniers, Amidonniers, Saint-Simon... et ses alentours : Tournefeuille, Pibrac, Plaisance du Touch, Léguevin, Colomiers, Blagnac, Beauzelle, Seilh, Aussonne, Cornebarrieu,. (6.50 % honoraires TTC à la charge de l'acquéreur.) Copropriété de 341 lots - dont 195 lots habitation. (Pas de procédure en cours). Charges annuelles : 1656 euros.
- Type de bien : Appartement
- DPE : C - 91 à 150 kWh/².an
- GES : A -< 6 kg eq CO2/².an
- Surface : 58 m²
- Localisation : France - Occitanie - Garonne (Haute)
- Ville : TOULOUSE
- Code postal : 31300
- Annonce créée le 24/02/2026









