Vente Appartement 31300, TOULOUSE france 285 000 €
1 / 4
Descriptif du bien
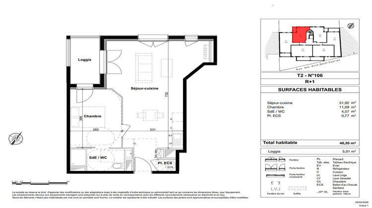
Découvrez ce bel appartement T2 de 49m² situé au coeur du quartier de Saint-Cyprien. Ce T2 lumineux offre un beau séjour/cuisine de 32m² qui s'ouvre sur un balcon avec une exposition plein Ouest, idéale pour un espace extérieur. Une chambre chambre avec une salle d'eau privative et un WC complète ce bien. Vous êtes à proximité du métro Saint-Cyprien. Profitez d'une vie de quartier agréable et dynamique, avec commerces, écoles, équipements et espaces verts à proximité immédiate. Contactez-nous dès maintenant pour réaliser votre projet immobilier ! louisronchet@li2ri.fr 0766410963
- Type de bien : Appartement
- DPE : B - 51 à 90 kWh/².an
- GES : B - 6 à 10 kg eq CO2/².an
- Surface : 49 m²
- Localisation : France - Occitanie - Garonne (Haute)
- Ville : TOULOUSE
- Code postal : 31300
- Annonce créée le 17/02/2026



