Vente Appartement 31300, TOULOUSE france 485 000 €
Descriptif du bien
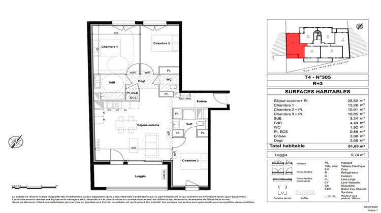
Découvrez ce bel appartement T4 de 82m² situé au coeur de Saint-Cyprien. Ce T4 lumineux offre un beau séjour/cuisine de 29m² qui s'ouvre sur un balcon avec une exposition plein Sud, idéale pour un espace extérieur. L'entrée dispose d'un placard, trois chambres qui sont équipées d'un placard mural. Une salle de bain, une salle d'eau et un WC complète ce bien. Deux places de parking en sous-sol. Mobilité exceptionnelle : Vous êtes à proximité du métro Saint-Cyprien. Profitez d'une vie de quartier agréable et dynamique, avec commerces, écoles, équipements et espaces verts à proximité immédiate. Contactez-nous dès maintenant pour réaliser votre projet immobilier ! louisronchet@li2ri.fr 0766410963
- Type de bien : Appartement
- DPE : B - 51 à 90 kWh/².an
- GES : B - 6 à 10 kg eq CO2/².an
- Surface : 82 m²
- Localisation : France - Occitanie - Garonne (Haute)
- Ville : TOULOUSE
- Code postal : 31300
- Annonce créée le 17/02/2026



