Vente Appartement 31200, Toulouse france 95 000 €
Descriptif du bien
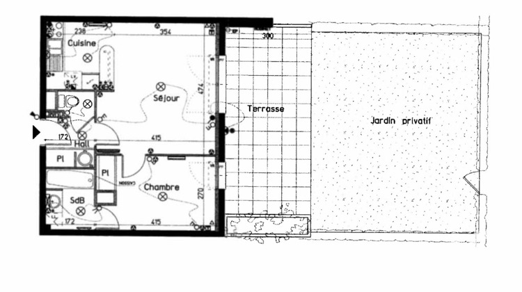
Iad France - Nadege Andrieu Verger vous propose : T2 idéal investisseur (vendu loué) à la limite entre Toulouse, Aucamville et Launaguet- Cuisine ouverte sur le séjour permettant d'accéder à la terrasse puis au jardin- Entrée avec placard et WC séparés- 1 chambre et 1 salle de bain- à l'extérieur : terrasse de 20 m² orientée à l'est, et jardin de 40 m².- 1 place de parking en sous-sol sécurisé - copro de 50 lots datant de 2006- très bon emplacement : commerces, station vélib', ligne de bus L10 (Fenouillet - métro La Vache), 36 (Borderouge - La Roseraie) et 60 (Trois cocus - St-Alban) à moins de 10 minutes à piedsLoyer actuel 512¤ + 45¤ de provisions de charges. Taxe foncière 950¤ dont 129¤ de TEOMCharges de copropriété annuelles sont de 616¤, dont part locataire 440¤Potentiel d'amélioration qui permettra des déductions sur les revenus fonciers La présente annonce est soumise à la vente Interactive. Prix de départ : 95000¤La vente interactive est un mode de vente immobilière digitale reposant sur un principe d'enchères en ligne. Elle permet aux acquéreurs de déposer facilement, en ligne, leurs offres d'achat à l'intention du vendeur. Début des offres d'achat en ligne 17 / 04 / 2026 à 19hFin des offres d'achat en ligne : 19 / 04 / 2026 à 19hLe vendeur peut contresigner en ligne et à tout moment, toute offre d'achat dont le prix et les conditions lui conviennent. Il n'est contraint par aucune offre d'achat, quel que soit le montant de celle-ci. Contactez moi pour organiser une visiteVisite virtuelle disponible sur demandeProfessionnels de l'immobilier je suis ouverte à l'interagenceLa presente annonce immobiliere vise 2 lots situés dans une copropriété de 118 lots au total et ne faisant l'objet d'aucune procédure en cours citée à l'article L. 721-1 du code de la construction et de l'habitation. Montant moyen mensuel de charges déclaré par le vendeur : 51.33¤ par mois (soit 616 ¤ annuel). Honoraires d'agence à la charge du vendeur. Information d'affichage énergétique sur ce bien : classe ENERGIE C indice 155 et classe CLIMAT A indice 4. Les informations sur les risques auxquels ce bien est exposé, y compris l'obligation légale de débroussaillement, sont disponibles sur le site Géorisques : http://www.georisques.gouv.fr.La présente annonce immobilière a été rédigée sous la responsabilité éditoriale de Mme Nadege Andrieu Verger mandataire indépendant en immobilier (sans détention de fonds), agent commercial de la SAS I@D France immatriculé au RSAC de TOULOUSE sous le numéro 880399530, titulaire de la carte de démarchage immobilier pour le compte de la société I@D France SAS.Informations LOI ALUR : Soumis au régime de copropriété. Nombre de lots : 118. Quote part annuelle(moyenne) : 616 euros. Honoraires charge vendeur. (gedeon_6727_32974457)
- Type de bien : Appartement
- DPE : C - 91 à 150 kWh/².an
- GES : A -< 6 kg eq CO2/².an
- Surface : 43 m²
- Localisation : France - Occitanie - Garonne (Haute)
- Ville : Toulouse
- Code postal : 31200
- Annonce créée le 02/04/2026





