Vente Appartement 31200, Toulouse france 120 000 €
Descriptif du bien
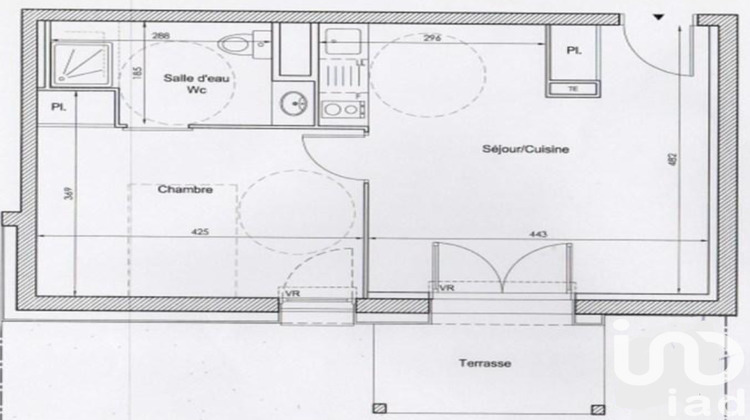
Iad France - Agnès Bessou vous propose : Appartement T2 en rez-de-jardin dans résidence récente. Il se compose d'une entrée avec placards, d'un séjour avec une cuisine ouverte donnant sur la terrasse et le jardin.
Dans la partie nuit : 1 chambre avec rangements et 1 salle d'eau avec toilettes.
1 place de parking en sous-sol.
À proximité du périphérique, des commerces et services, des lignes de bus L10,60, 29 et 69. Idéal premier achat ou investissement ! Informations et autres photos disponibles sur I@D France. c - Référence 1843204 - Agnès Bessou, conseillère immobilier indépendante.
La presente annonce immobiliere vise 2 lots situés dans une copropriété de 160 lots au total et ne faisant l'objet d'aucune procédure en cours citée à l'article L. 721-1 du code de la construction et de l'habitation. Montant moyen mensuel de charges déclaré par le vendeur : 144.8¤ par mois (soit 1737.6 ¤ annuel). Honoraires d'agence à la charge du vendeur.
Information d'affichage énergétique sur ce bien : classe ENERGIE C indice 103 et classe CLIMAT C indice 19. Les informations sur les risques auxquels ce bien est exposé, y compris l'obligation légale de débroussaillement, sont disponibles sur le site Géorisques : http://www.georisques.gouv.fr.
La présente annonce immobilière a été rédigée sous la responsabilité éditoriale de Mme Agnès Bessou mandataire indépendant en immobilier (sans détention de fonds), agent commercial de la SAS I@D France immatriculé au RSAC de TOULOUSE sous le numéro 752835967, titulaire de la carte de démarchage immobilier pour le compte de la société I@D France SAS.
Informations LOI ALUR :
Soumis au régime de copropriété.
Nombre de lots : 160.
Quote part annuelle(moyenne) : 1737.6 euros.
Honoraires charge vendeur. (gedeon_6727_31873406)
- Type de bien : Appartement
- DPE : C - 91 à 150 kWh/².an
- GES : C - 11 à 20 kg eq CO2/².an
- Surface : 40 m²
- Localisation : France - Occitanie - Garonne (Haute)
- Ville : Toulouse
- Code postal : 31200
- Annonce créée le 05/02/2026





