Vente Appartement 31100, TOULOUSE france 155 000 €
Descriptif du bien
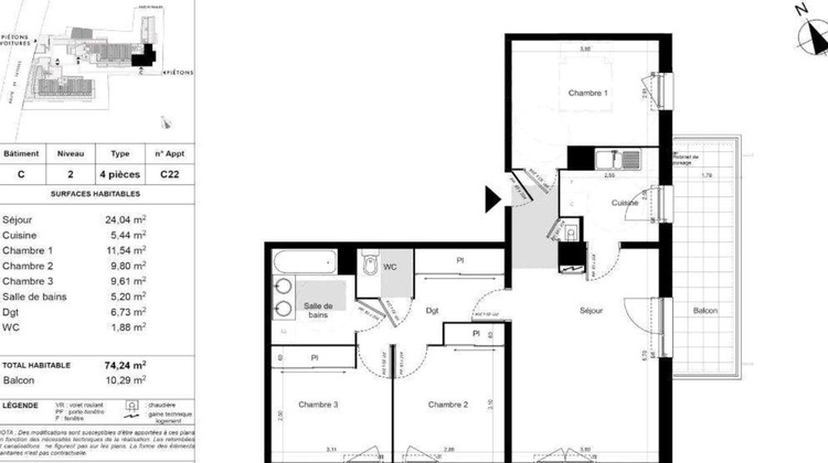
Appartement T4 avec terrasse proche Oncopole. Votre agence Immo de France a le plaisir de vous présenter à la vente et libre d'occupation cet appartement de type 4 de 74.27m² situé au 1er étage d'une résidence sécurisée, SANS VIS A VIS. Il se compose d'une entrée, d'un séjour de 24m² donnant sur un balcon de 9m², d'une cuisine séparée aménagée et équipée, de trois chambres dont deux avec placard, d'une salle de bains avec wc séparés. Vous disposerez également d'une place de parking privative en sous-sol. La résidence se situe à proximité des commerces et de l'ONCOPOLE, BUS L4 au pied de la résidence. VENDU LIBRE. (7.00 % honoraires TTC à la charge de l'acquéreur.) Copropriété de 47 lots - dont 47 lots habitation. Charges annuelles : 1046 euros.
- Type de bien : Appartement
- DPE : C - 91 à 150 kWh/².an
- GES : C - 11 à 20 kg eq CO2/².an
- Surface : 74 m²
- Localisation : France - Occitanie - Garonne (Haute)
- Ville : TOULOUSE
- Code postal : 31100
- Annonce mise à jour le 07/04/2026







