Vente Appartement 31100, TOULOUSE france 235 900 €
Descriptif du bien
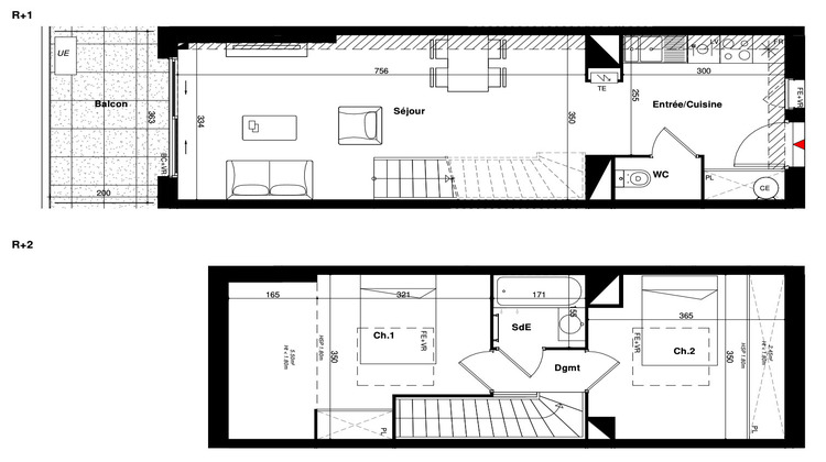
Situé dans une résidence neuve, cet appartement T3 duplex de 58?m² se compose d'un séjour de 23?m², de 2 chambres, d'une salle d'eau et d'un WC séparé. Il bénéficie également d'un balcon de 7?m² et d'une place de parking privative. L'appartement est lumineux et bien agencé, offrant un espace de vie agréable . Le quartier de Lardenne est pratique, avec commerces et services à proximité, ainsi que des transports faciles d'accès. Idéal pour un premier achat, une famille ou un investissement locatif, ce bien permet de profiter d'un logement neuf avec des prestations modernes. Réalisez votre projet immobilier à prix maîtrisé ! Bénéficiez d'un dispositif spécifique pour l'acquisition de votre résidence principale, sous conditions de ressources. Une occasion rare d'accéder à la propriété dans des conditions avantageuses. Contactez-nous pour savoir si vous êtes éligible. D'autres appartements sont disponibles !
- Type de bien : Appartement
- Surface : 58 m²
- Localisation : France - Occitanie - Garonne (Haute)
- Ville : TOULOUSE
- Code postal : 31100
- Annonce créée le 27/01/2026


