Vente Appartement 31100, TOULOUSE france 180 000 €
Descriptif du bien
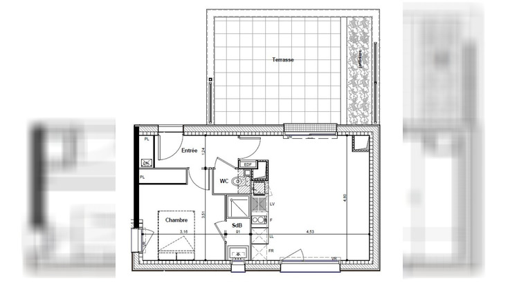
TOULOUSE - LARDENNE. VENDU LOUE : 566 euros HC / mois. A proximité de toutes commodités, cet appartement T2 d'une superficie d'environ 40 m² se situe au 2ème étage d'une agréable résidence de 2017. Il se compose : - d'une entrée avec placard - d'un séjour avec cuisine ouverte aménagée de 21 m² - d'une grande terrasse de 20 m² - d'une chambre avec placard de 10 m² - d'une salle d'eau - d'un WC indépendant Une place de parking privative en sous-sol complète ce bien. Chauffage individuel gaz. Charges annuelles : 802 euros. Ses atouts : Idéal investissement, emplacement, proche transports, résidence récente et arborée, terrasse et parking. Copropriété de 198 lots - dont 82 lots habitation. (Pas de procédure en cours). Charges annuelles : 802 euros.
- Type de bien : Appartement
- DPE : C - 91 à 150 kWh/².an
- GES : C - 11 à 20 kg eq CO2/².an
- Surface : 40 m²
- Localisation : France - Occitanie - Garonne (Haute)
- Ville : TOULOUSE
- Code postal : 31100
- Annonce créée le 06/01/2026








