Mon compte
Accueil > Vente > Occitanie > haute-garonne > Vente Appartement Toulouse
Retour

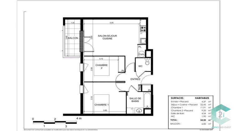
Vente Appartement Toulouse, 54 m²

Vente Appartement 31100, Toulouse france 99 900 €

Suivre ce bien

Descriptif du bien

Toulouse Lafourguette.


Idéal première achat. venez découvrir cet appartement T3 de 54,50 m² situé au 3ème étage (R+3), offrant un agencement optimisé et un extérieur agréable.

Ce bien se compose d'une entrée avec placard intégré desservant :
Une pièce de vie avec cuisine ouverte de 22,45 m², lumineux, donnant un accès direct à un balcon de 6m2.
Le coin nuit : Il dessert deux chambres bien proportionnées :Une première chambre de 11,91 m².
Une seconde chambre de 9,33 m² équipée d'un placard.

Et une salle de bains avec baignoire (4,54 m²) et des WC séparés pour plus de confort.
LES ATOUTSAgencement sans perte d'espace : Le plan sépare bien la zone jour de la zone nuit.
Rangements : Placards prévus dans l'entrée, le dégagement et la chambre 2.
Localisation : Proximité immédiate des transports et des commodités de la zone de Bellefontaine / Basso Cambo.
Une place de parking privative dans la résidence
*home staging, contacter-nous pour avoir les photos vide.

Informations financières:

Taxe foncière: 1 131€ (153 TOM).

Charges de copropriété: 1 227€.



Honoraires à la charge du vendeur. Dans une copropriété de 47 lots. Aucune procédure n'est en cours. Classe énergie C, Classe climat A Montant moyen estimé des dépenses annuelles d'énergie pour un usage standard, établi à partir des prix de l'énergie de l'année 2021 : entre 491.00 et 665.00 €. Les informations sur les risques auxquels ce bien est exposé sont disponibles sur le site Géorisques : georisques.gouv.fr.

  • Type de bien : Appartement
  • DPE : C - 91 à 150 kWh/².an
  • GES : A -< 6 kg eq CO2/².an
  • Surface : 54 m²
  • Localisation : France - Occitanie - Garonne (Haute)
  • Ville : Toulouse
  • Code postal : 31100
  • Annonce mise à jour le 20/02/2026

Biens similaires

Chargement en cours...

Commentaires ou Avis

Poster un commentaire ou un avis sur ce bien. Ce commentaire sera visible sur le sur le site, n’y inscrivez pas vos données personnelles