Vente Appartement 31100, TOULOUSE france 149 000 €
1 / 6
Descriptif du bien
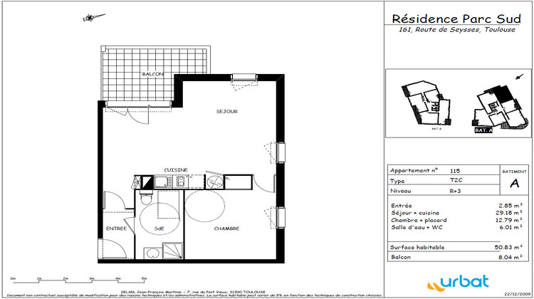
Route de Seysses: appartement T2 de 50.83 m² vendu avec locataire en place, comprenant, une entrée, un séjour-cuisine, une chambre avec placard, salle d'eau, balcon et parking privatif. Proche commodités et bus ligne L4 Copropriété de 25 lots Charges annuelles : 1200 euros.
- Type de bien : Appartement
- Surface : 50 m²
- Localisation : France - Occitanie - Garonne (Haute)
- Ville : TOULOUSE
- Code postal : 31100
- Disponible le 18/11/2024
- Annonce créée le 26/11/2024





