Mon compte
Accueil > Vente > Occitanie > haute-garonne > Vente Appartement Toulouse
Retour

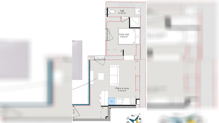
Vente Appartement Toulouse, 30 m²

Vente Appartement 31000, Toulouse france 132 440 €

Suivre ce bien

Descriptif du bien

TOULOUSE / SAINT-AUBIN / HYPER CENTRE

Entre Canal du Midi et centre-ville – Emplacement d'exception à deux pas de Matabiau

Découvrez ce T1 bis de 30 m2 en chartreuse au deuxième étage, au coeur d'un projet unique de rénovation complète d'un immeuble de style toulousain situé boulevard de la Gare, à proximité immédiate du Canal du Midi, des Ramblas et du quartier Saint-Aubin.

Un emplacement stratégique

Sa localisation, proche du métro et de la gare Matabiau, en fait un secteur prisé et en pleine transformation, porté par le projet urbain Grand Matabiau et la future Tour Occitanie.
Un emplacement idéal, que ce soit pour y vivre ou investir.

Le prix affiché correspond à un appartement vendu brut, sans travaux à l'exception des fenêtres en double vitrage et des volets électriques.

Mais vous avez la possibilité d'acquérir ce bien entièrement rénové au prix de 165 550 € FAI

Des travaux de rénovation complets et qualitatifs

Le programme prévoit une rénovation intégrale dans le respect du style architectural toulousain et aux normes énergétiques RT.
L'ensemble vise à garantir confort, performance et économies d'énergie tout en offrant un cadre de vie convivial et intimiste autour d'une cour commune.

Rénovation énergétique :
Pose de climatisations réversibles dans le séjour et sèche-serviettes dans la salle de bain
Installation d'un chauffe-eau électrique performant
Pose de VMC hygroréglables
Double vitrage performant sur les menuiseries extérieures
Aménagement intérieur :
Cuisine équipée ou kitchenette (selon typologie du logement)
Salle d'eau et WC refaits à neuf : receveur de douche, meuble vasque, WC, faïence
Revêtements de sol stratifiés ou carrelage/PVC selon les pièces
Peintures intégrales murs et plafonds
Électricité remise aux normes
Révision de la toiture
Parties communes rénovées : sols, peinture, éclairages
Conservation et finitions :
Peinture des portes et placards existants
Conservation des portes d'entrée et volets roulants PVC si en bon état
Les atouts du projet
Emplacement stratégique : boulevard de la Gare, à proximité du métro et de la gare Matabiau
Cadre attractif : Canal du Midi, Ramblas et quartier Saint-Aubin accessibles à pied
Secteur en plein essor : valorisation à venir grâce au projet Grand Matabiau et à la Tour Occitanie
Opération sécurisée : assurance dommage-ouvrage et garantie financière d'achèvement
Conditions de vente

Possibilité d'acquérir le bien entièrement rénové pour un prix de 165 550 € FAI

Une opportunité rare d'investir dans un secteur central, à fort potentiel locatif et patrimonial, avec la flexibilité de réaliser ou non les aménagements intérieurs selon vos besoins.

Honoraires inclus de 6.43% TTC à la charge de l'acquéreur. Prix hors honoraires 124 440 €. Dans une copropriété de 18 lots. Aucune procédure n'est en cours. Non soumis au DPE. Les informations sur les risques auxquels ce bien est exposé sont disponibles sur le site Géorisques : georisques.gouv.fr.

  • Type de bien : Appartement
  • Surface : 30 m²
  • Localisation : France - Occitanie - Garonne (Haute)
  • Ville : Toulouse
  • Code postal : 31000
  • Annonce créée le 13/03/2026

Biens similaires

Chargement en cours...

Commentaires ou Avis

Poster un commentaire ou un avis sur ce bien. Ce commentaire sera visible sur le sur le site, n’y inscrivez pas vos données personnelles