Vente Appartement 31400, Toulouse france 152 900 €
Descriptif du bien
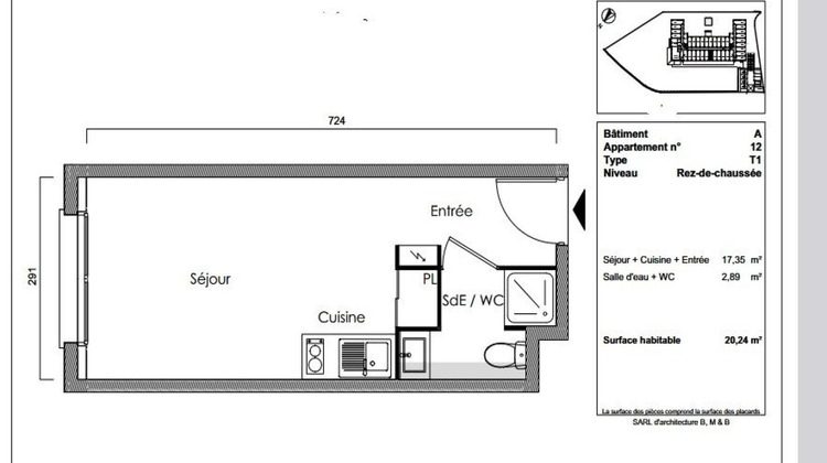
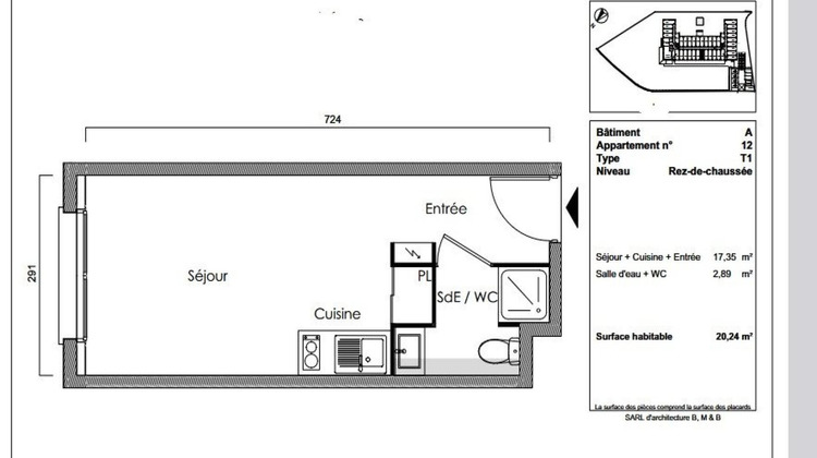
À vendre, studio de 20 m² situé en rez-de-chaussée, parfait pour les investisseurs ou les étudiants.
Ce bien bénéficie d'un emplacement idéal, à proximité immédiate de tous les commerces et des transports (lignes de bus 83,107 et L1 à 200 mètres) ainsi que de la gare Matabiau à seulement 2,2 km.
Proche du futur quartier Malepère, ce secteur en plein développement constitue une véritable opportunité. La résidence neuve, livrée en 2027, est sécurisée et propose des services appréciables : local à vélos, laverie équipée et salle de sport en libre accès. Frais de notaire réduits, garantie décennale et éligibilité au nouveau dispositif LLI (Location à Loyer Intermédiaire) viennent compléter les atouts de ce bien.
Le bien comprend 1 lot, et il est situé dans une copropriété de 79 lots (il n'y a pas de charges courantes liées à la copropriété et le syndicat des copropriétaires ne fait pas l'objet d'une procédure citée à l'article L. 721-1 du code de la construction et de l'habitation).
Les informations sur les risques auxquels ce bien est exposé sont disponibles sur le site Géorisques : www.georisques.gouv.fr
Prix de vente : 152 900 ¤
Honoraires charge vendeur
Contactez votre conseiller SAFTI : Samira KUBIAK, Tél. : 07 78 12 18 06, E-mail : samira.kubiak@safti.fr - EI - Agent commercial immatriculé au RSAC de Toulouse sous le numéro 987611407.
Informations LOI ALUR :
Soumis au régime de copropriété.
Nombre de lots : 79.
Honoraires charge vendeur. (gedeon_26118_31463460)
- Type de bien : Appartement
- Surface : 106 m²
- Localisation : France - Occitanie - Garonne (Haute)
- Ville : Toulouse
- Code postal : 31400
- Annonce mise à jour le 18/12/2025

