Vente Appartement 31830, Plaisance-du-Touch france 109 500 €
Descriptif du bien
Idéal investisseur Forom® Immobilier
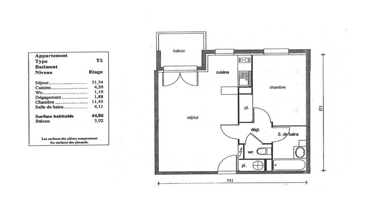
Forom Immobilier vous propose cet appartement T2 d'une surface d'environ 44 m² au 1er et dernier étage situé dans une résidence sécurisée sur la commune de Plaisance du Touch, à proximité du Parc de l'Ousseau.
Le logement dispose d'un séjour, une cuisine, une chambre, une salle de bains, un WC et une place de parking.
Locataire sérieuse en place depuis début 2020 !
Loyer mensuel : 587 / mois soit 504 HC + 72 de charges locatives + 11 TEOM
Rentabilité : 6,32% brute
Charges de copropriété : 120,50 / mois
Eau chaude et chauffage individuels électrique
Taxe foncière : 1 084 / an (dont 240 de TEOM remboursée par le locataire)
Date de fin de bail : 19/01/2029
DPE : C
Nombre de lots : 96
Honoraires charge vendeur
Honoraires à la charge du vendeur. Dans une copropriété de 96 lots. Aucune procédure n'est en cours. Classe énergie C, Classe climat B Montant estimé des dépenses annuelles d'énergie pour un usage standard : entre 760.00 et 1090.00 sur les années 2021, 2022 et 2023 (abonnements compris). Les informations sur les risques auxquels ce bien est exposé sont disponibles sur le site Géorisques : georisques.gouv.fr.
- Type de bien : Appartement
- DPE : D - 151 à 230 kWh/².an
- GES : B - 6 à 10 kg eq CO2/².an
- Surface : 44 m²
- Localisation : France - Occitanie - Garonne (Haute)
- Ville : Plaisance-du-Touch
- Code postal : 31830
- Annonce mise à jour le 20/03/2026


