Vente Appartement 44000, NANTES france 355 000 €
Descriptif du bien
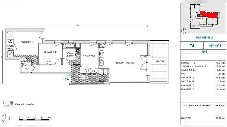
NANTES PETIT PORT: Calme, verdure et qualité caractérisent cette petite résidence contemporaine de 17 appartements située non loin des commerces et idéalement desservie par les bus et tramway pour rejoindre le coeur de Nantes en 12 minutes, A VENDRE beau T4 de 88.63 m² situé au premier étage dans cette résidence de standing de deux étages comprenant une pièce de vie de 32.64 m² ouvert sur un balcon de 12 m², trois chambres de 14.82m², 10.16m² et 9.22m² et également une salle d'eau ainsi qu'une salle de bain. Le tout bénéficie d'un agencement fonctionnel et des matériaux de qualité ainsi que d'une place de stationnement sécurisée en sous sol. idéal investisseur en LMNP ou Résidence principale Label Energie RE2012 norme PMR (personne à mobilité réduite) Prix: 355 000 euros (Prix direct promoteur) REF: 31663ROO-101 Disponibilité 2025 "Les informations sur les risques auxquels ce bien est exposé sont disponibles sur le site Géorisques : www.georisques.gouv.fr" Copropriété de 17 lots - dont 17 lots habitation.(Pas de procédure en cours).
- Type de bien : Appartement
- Surface : 88 m²
- Localisation : France - pays-de-la-loire - Loire Atlantique
- Ville : NANTES
- Code postal : 44000
- Annonce mise à jour le 14/10/2025



