Vente Appartement 31860, Labarthe-sur-Lèze france 269 900 €
Descriptif du bien
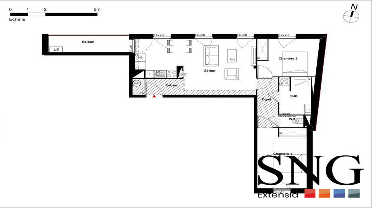
Au coeur d'une résidence sécurisée, au sein de la commune de LABARTHE SUR LEZE, proche de toutes les commodités et des transports, découvrez vite notre appartement T3 situé en deuxième étage de 63.39m², composé d'une entrée donnant sur un séjour agréable, avec une cuisine ouverte semi-équipée donnant sur un balcon de 6.09m², une salle d'eau, un WC indépendant, et deux chambres avec placard.
Deux places de parking sont comprises avec l'appartement
Pour en savoir plus contactez Mr BELKACEM au 06x 09x 31x 44x 04x
Honoraires à la charge du vendeur. Dans une copropriété de 36 lots. Aucune procédure n'est en cours. DPE vierge. Les informations sur les risques auxquels ce bien est exposé sont disponibles sur le site Géorisques : georisques.gouv.fr.
Votre conseiller SNG Extensia : Hasni BELKACEM
Agent commercial (Entreprise individuelle)
RSAC 920 824 885 RSAC Toulouse
RCP 59 661 778
Retrouvez l'annonce de l'agence immobilière SNG Extensia sur : https://www.sng-immobilier.com/ref/VA34995
- Type de bien : Appartement
- Surface : 63 m²
- Localisation : France - Occitanie - Garonne (Haute)
- Ville : Labarthe-sur-Lèze
- Code postal : 31860
- Annonce créée le 29/08/2025

