Mon compte
Accueil > Vente > Occitanie > haute-garonne > Vente Appartement Fonbeauzard
Retour

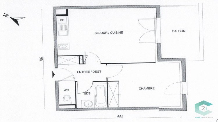
Vente Appartement Fonbeauzard, 41 m²

Vente Appartement 31140, Fonbeauzard france 118 000 €

Suivre ce bien

Descriptif du bien

T2 FONBEAUZARD

Situé dans une résidence sécurisée et entretenue de Fonbeauzard, découvrez cet appartement T2 fonctionnel de 41 m², idéal pour un premier achat ou un investissement locatif.

Ce bien vous propose :
Espace de vie : Un séjour lumineux avec cuisine ouverte, donnant sur un balcon de 7,80 m² exposé Sud-Est, parfait pour profiter d'une belle luminosité naturelle.
Côté nuit : Une chambre avec placard intégré, une salle de bain et des WC séparés pour plus de confort.
Entrée : Un dégagement avec placard offrant un espace de rangement pratique dès l'arrivée.
Stationnement : Une place de parking privée au sein de la résidence sécurisée.
Données financières :Taxe foncière : 742 € (2025).
Charges de copropriété : 1 250 € / an (2025).
Situation locative et disponibilité :

L'appartement est actuellement loué, mais un congé pour vente sera délivré pour une libération des lieux au plus tard début septembre. Ce bien est donc une opportunité parfaite pour un projet de résidence principale à la rentrée ou pour un premier placement locatif.

Intéressé ? Contactez-nous

Honoraires à la charge du vendeur. Classe énergie C, Classe climat C Montant estimé des dépenses annuelles d'énergie pour un usage standard : entre 500.00 € et 800.00 € sur les années 2021, 2022 et 2023 (abonnements compris). Les informations sur les risques auxquels ce bien est exposé sont disponibles sur le site Géorisques : georisques.gouv.fr.

  • Type de bien : Appartement
  • DPE : C - 91 à 150 kWh/².an
  • GES : C - 11 à 20 kg eq CO2/².an
  • Surface : 41 m²
  • Localisation : France - Occitanie - Garonne (Haute)
  • Ville : Fonbeauzard
  • Code postal : 31140
  • Annonce créée le 06/02/2026

Biens similaires

Chargement en cours...

Commentaires ou Avis

Poster un commentaire ou un avis sur ce bien. Ce commentaire sera visible sur le sur le site, n’y inscrivez pas vos données personnelles