Vente Appartement 31770, Colomiers france 119 000 €
Descriptif du bien
T2 Colomiers Vente avec congé délivré Libre au 22/09/2026
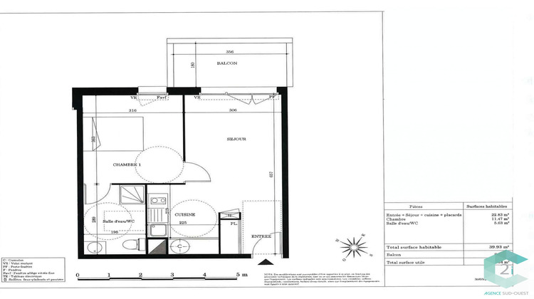
Situé à Colomiers, au sein d'une résidence récente, sécurisée et bien entretenue avec ascenseur, découvrez ce T2 de 39,93 m² au 2? et dernier étage.
L'appartement se compose d'une entrée ouvrant sur un séjour avec cuisine ouverte, d'une chambre avec rangement, ainsi que d'une salle d'eau avec WC.
Un balcon de 6,50 m² prolonge agréablement l'espace de vie. Une place de stationnement extérieure privative complète le bien.
Situation locative :
Le bien est actuellement occupé dans le cadre d'un bail en cours depuis septembre 2023.
Un congé pour vente a été délivré au locataire, permettant une libération du bien au 22 septembre 2026.
Le bien est ainsi proposé libre d'occupation à cette échéance, offrant plusieurs stratégies : résidence principale ou remise en location.
Environnement :
Secteur calme, à proximité immédiate des commodités, transports et bassins d'emploi.
Éléments financiers :
Loyer actuel : 585,94 charges comprises (dont 49 de provisions sur charges)
Charges de copropriété : 70 / mois
Taxe foncière : 872 (dont 106 de TEOM)
Les honoraires sont à la charge du vendeur.
Produit pertinent pour investisseur souhaitant sécuriser un actif avec visibilité à moyen terme ou pour un acquéreur préparant une future résidence principale.
Honoraires à la charge du vendeur. Dans une copropriété de 169 lots. Aucune procédure n'est en cours. Classe énergie C, Classe climat A Montant moyen estimé des dépenses annuelles d'énergie pour un usage standard, établi à partir des prix de l'énergie de l'année 2021 : entre 411.00 et 557.00 . Les informations sur les risques auxquels ce bien est exposé sont disponibles sur le site Géorisques : georisques.gouv.fr.
- Type de bien : Appartement
- Surface : 40 m²
- Localisation : France - Occitanie - Garonne (Haute)
- Ville : Colomiers
- Code postal : 31770
- Annonce mise à jour le 01/05/2026

