Vente Appartement 31770, COLOMIERS france 186 500 €
Descriptif du bien
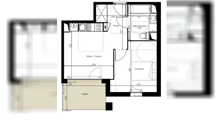
Fiche Id-CAB168561 : Colomiers, T2 2p terrasse - sud ouest - parking d'environ 38 m2 comprenant 2 piece(s) dont 1 chambre(s) + Terrasse de 6 m2 - Construction 2025 R?sidence standing - Equipements annexes : terrasse - balcon - parking - digicode - double vitrage - ascenseur - - chauffage : Gaz Individuel - Classe Energie A : 8 kWh.m2.an - (DPE ancienne version) - Plus d'informations disponibles sur demande... - Mentions légales : Proposé à la vente à 186500 Euros (honoraires à la charge du vendeur) - Classe Energie A : 8 kWh.m2.an - (DPE ancienne version) - Bien en copropriété - Charges annuelles : 888 Euros/an (soit 74 Euros/mois) - Affaire suivie par Mr Maximilien ZANIER (Agent immobilier - Responsable) - Reseau Immo-Diffusion Bagnolet - Pour plus d'informations, contactez notre secrétariat au 09 74 53 13 81 (Appel gratuit ou prix d'une communication locale)
- Type de bien : Appartement
- Surface : 38 m²
- Localisation : France - Occitanie - Garonne (Haute)
- Ville : COLOMIERS
- Code postal : 31770
- Annonce créée le 12/03/2025



