Vente Appartement 31220, Cazères france 69 900 €
Descriptif du bien
T2 loué - Résidence avec Piscine - Cazères
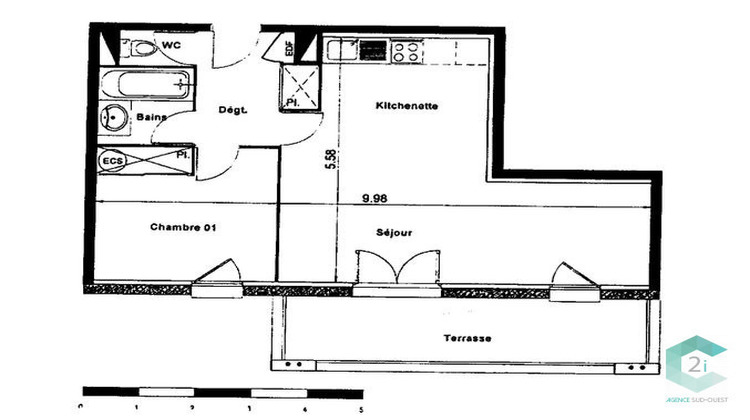
Situé au coeur d'une résidence sécurisée avec piscine, ce bel appartement T2 de 45,05 m² est vendu déjà loué, locataire à jour de tous paiements
La pièce de vie principale se compose d'un séjour spacieux de 26 m² avec kitchenette, une exposition plein Sud.
Cet espace s'ouvre sur un large balcon de près de 10 m².
Côté nuit, il dipose d'une chambre confortable avec placard intégré, complétée par une salle de bain et des WC séparés.
L'entrée agencée dispose d'un rangement intégré.
Sur le plan financier :
- loyer mensuel 465 charges comprises.
- La taxe foncière s'élève à 573
- Les charges de copropriété, incluant l'entretien de la piscine et des espaces communs, tournent autour de 90 par mois.
Contactez-nous pour organiser une visite
Honoraires à la charge du vendeur. Dans une copropriété de 252 lots. Aucune procédure n'est en cours. Classe énergie C, Classe climat A Montant estimé des dépenses annuelles d'énergie pour un usage standard : entre 660.00 et 940.00 sur les années 2021, 2022 et 2023 (abonnements compris). Les informations sur les risques auxquels ce bien est exposé sont disponibles sur le site Géorisques : georisques.gouv.fr.
- Type de bien : Appartement
- Surface : 45 m²
- Localisation : France - Occitanie - Garonne (Haute)
- Ville : Cazères
- Code postal : 31220
- Annonce mise à jour le 20/03/2026

