Vente Appartement 31620, Castelnau-d'Estrétefonds france 85 000 €
Descriptif du bien
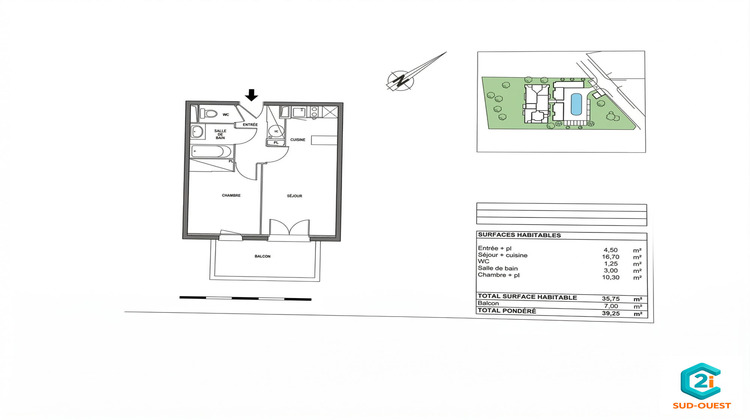
T2 avec balcon et double stationnement Investissement locatif (PLS)
Situé à Castelnau-d'Estrétefonds, cet appartement T2 en rez-de-chaussée se trouve dans une résidence calme et bien entretenue.Il se compose d'un séjour lumineux avec accès à un balcon, bénéficiant d'une exposition sud-ouest, idéale pour profiter de la lumière naturelle tout au long de la journée.Le bien est vendu avec deux places de stationnement :
une place extérieure
une place couverte sous abri
Situation locative : Appartement actuellement loué 395 / mois.Fiscalité :Taxe foncière : 198 / an
Cadre juridique : Bien soumis à une convention PLS (Prêt Locatif Social) impliquant un plafonnement des loyers et des conditions de ressources pour les locataires.
Fin de la convention prévue au 30 juin 2028.
Contactez-nous pour plus d'informations ou organiser une visite !
Honoraires à la charge du vendeur. Dans une copropriété de 18 lots. Aucune procédure n'est en cours. DPE en cours. Les informations sur les risques auxquels ce bien est exposé sont disponibles sur le site Géorisques : georisques.gouv.fr.
- Type de bien : Appartement
- Surface : 36 m²
- Localisation : France - Occitanie - Garonne (Haute)
- Ville : Castelnau-d'Estrétefonds
- Code postal : 31620
- Annonce créée le 03/04/2026

