Vente Appartement 31700, BLAGNAC france 335 842 €
Descriptif du bien
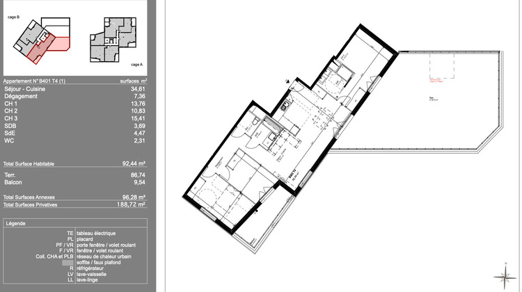
Belle opportunité à Blagnac ! A quelques pas du tramway Appartement vendu en TVA 5,5 ( sous conditions de revenus ) . Appartement 4 pièces de 92 m² avec un balcon de 9 m2 et une terrasse de 86m2 ! Espace séjour / cuisine de 34m², 3 chambres , salle d'eau et salle de bain avec un WC Belles prestations: carrelage 40 X 40 dans la salle de bain , parquet stratifié dans l'appartement , volets roulants électriques . 2 places de Parking en sous-sol . Centre commercial de Blagnac à 4 minutes , arrêt de tramway , Patinoire à 2 min , proches de toutes les commodités . Appartement éligible au Prêt à Taux zéro (PTZ) . Frais de notaire réduits . D'autres appartements sont disponibles, n'hésitez pas à nous contacter
- Type de bien : Appartement
- Surface : 92 m²
- Localisation : France - Occitanie - Garonne (Haute)
- Ville : BLAGNAC
- Code postal : 31700
- Annonce créée le 27/01/2026


