Vente Appartement 31190, Auterive france 73 900 €
Descriptif du bien
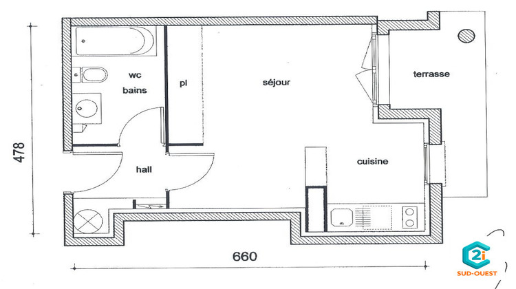
INVESTISSEMENT LOCATIF - T1 - AUTERIVE - 34 M2
Opportunité pour investisseur avec locataire en place depuis 2019 assurant une stabilité immédiate.
Le bien est loue 439 Euros par mois charges comprises.
Ce studio de 34 m2 dispose d une pièce de vie lumineuse avec coin cuisine et d une salle d eau avec WC.
Une place de parking privative est incluse dans la vente.
Emplacement stratégique a proximité immédiate des commerces et des transports garantissant la pérennité de l investissement.
Prix de vente 73 900 Euros FAI
Dossier disponibles sur demande.
Contactez nous pour plus d informations !
Honoraires à la charge du vendeur. Dans une copropriété de 77 lots. Aucune procédure n'est en cours. Classe énergie C, Classe climat A Montant moyen estimé des dépenses annuelles d'énergie pour un usage standard, établi à partir des prix de l'énergie de l'année 2025 : entre 500.00 et 720.00 . Les informations sur les risques auxquels ce bien est exposé sont disponibles sur le site Géorisques : georisques.gouv.fr.
- Type de bien : Appartement
- DPE : C - 91 à 150 kWh/².an
- GES : A -< 6 kg eq CO2/².an
- Surface : 34 m²
- Localisation : France - Occitanie - Garonne (Haute)
- Ville : Auterive
- Code postal : 31190
- Annonce créée le 27/03/2026

