Vente Appartement 31840, Aussonne france 265 000 €
Descriptif du bien
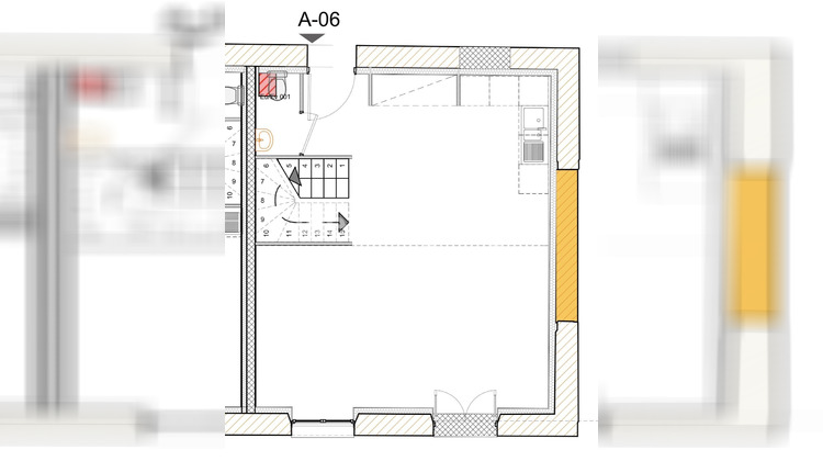
Anna Morra vous propose à Aussonne, dans un environnement calme et recherché, ce duplex T4 de 80,10m² mitoyen d'un côté avec jardinet privatif, situé au sein d'une bâtisse de caractère entièrement réhabilitée.
Ce bien offre un cadre de vie idéal, alliant charme de l'ancien et confort moderne.
Un intérieur fonctionnel et lumineux pour le confort au quotidien.
Au rez-de-chaussée, vous découvrirez une entrée ouvrant sur une belle pièce de vie de plus de 42m2 avec cuisine ouverte aménagée, un WC indépendant avec lave mains.
À l'étage, l'espace nuit se compose de trois chambres et d'une salle d'eau avec WC.
Vous profiterez d'un petit jardin privatif de plus de 30 m², parfait pour vos moments de détente.
Des prestations de qualité :
Le logement sera livré clé en main, avec des prestations modernes :
Isolation complète (murs et toiture)
Menuiseries neuves (PVC ou aluminium)
Électricité conforme NF C 15-100 + fibre
cuisine équipée (modifiable)
Salle d'eau aménagée (douche, meuble vasque, miroir)
parquet dans les pièces de vie
carrelage dans les pièces humides
Velux motorisés selon les lots
Pré-équipement pour climatisation (PAC air-air)
Extérieurs (selon lots) : jardin aménagé avec point d'eau, prise et éclairage
Performance énergétique visée : DPE B
Possibilité de personnalisation selon vos envies (avec supplément)
Une résidence à taille humaine
Situé au sein d'une copropriété de 12 logements, ce bien bénéficie :
de 2 places de stationnement
d'un environnement sécurisé
d'un cadre de vie agréable et résidentiel
Livraison prévisionnelle : début 2027
Un achat sécurisé
Ce bien est proposé dans le cadre d'une Vente d'Immeuble à Rénover (VIR), avec :
Garantie Financière d'Achèvement
Assurance Dommages-Ouvrage
Garanties décennales
Paiement échelonné selon l'avancement des travaux
Idéal pour une résidence principale ou un investissement de qualité
Opportunité rare sur le secteur nombre de lots limité
Me contacter pour plus de renseignements au 0611326344
Cette annonce immobilière a été rédigée par l'agent commercial WEELODGE Anna MORRA immatriculé au RSAC de Toulouse sous le n° 825 216 229 et titulaire de la carte de démarchage immobilier pour le compte de la société WEELODGE CENTER.
A voir sans tarder
Honoraires inclus de 3.92% TTC à la charge de l'acquéreur. Prix hors honoraires 255 000 . Dans une copropriété de 36 lots. Aucune procédure n'est en cours. Non soumis au DPE. Les informations sur les risques auxquels ce bien est exposé sont disponibles sur le site Géorisques : georisques.gouv.fr.
Votre conseiller WEELODGE - Réseau national de mandataires immobiliers : Agent Weeler - Anna MORRA
- Type de bien : Appartement
- Surface : 80 m²
- Localisation : France - Occitanie - Garonne (Haute)
- Ville : Aussonne
- Code postal : 31840
- Annonce créée le 10/04/2026





