Vente Appartement 49100, ANGERS france 309 000 €
Descriptif du bien
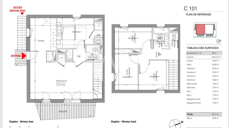
Conçue dans une démarche écoresponsable favorisant la neutralité carbone grâce à l'utilisation de bois et de matériaux recyclables, cette résidence intimiste offre un cadre de vie exceptionnel. Composée de seulement 31 logements répartis sur trois bâtiments de deux et trois étages, elle propose des appartements allant du 2 au 4 pièces. L'approche environnementale et bioclimatique est au coeur de ce projet, garantissant confort et respect de l'environnement. Située au coeur du quartier des Bretonnières, à proximité de la place de la Fraternité, cette résidence à l'architecture contemporaine intègre harmonieusement la nature omniprésente dans son design. Elle promet un cadre de vie moderne, pensé pour le bien-être de ses habitants. Un emplacement idéal et des équipements de qualité : Cette résidence bénéficie d'une localisation privilégiée, proche de nombreux équipements comme la bibliothèque Nelson Mandela, le centre aquatique Aquavita, le CHU, ainsi que le parc d'attractions Botanica. Pour la scolarité de vos enfants, vous trouverez une crèche, l'école primaire Nelson Mandela, et le lycée Jean Moulin, tous accessibles à pied. Des commerces accessibles à pied rythment le quotidien, tandis qu'un arrêt de tramway à seulement 5 minutes connecte directement la résidence au centre historique A VENDRE : Appartement neuf T5 en duplex de 96,10 m², situé au 1er étage d'une élégante résidence. Ce bien offre : Un espace de vie lumineux avec séjour et cuisine ouverte de 38,50m², prolongé par un balcon exposé Sud-Est, idéal pour profiter du soleil. Au rez-de-chaussée : une chambre avec salle d'eau privative et un WC indépendant. A l'étage : trois chambres supplémentaires, une salle de bain et un second WC. Idéalement situé, à seulement deux pas du tramway, permettant de rejoindre le centre-ville d'Angers en 5 minutes. Label Energie: RE 2020-Seuil 2025 norme PMR (personne à mobilité réduite) Prix: 309 000 euros TTC * (Frais notaire réduits 2.5%) *Prix soumis à conditions d'éligibilité à l'accession abordable TVA 5,5% Exclusivement réservé pour de la résidence principale REF: 34611PasC101 Informations auprès de Gwénaëlle GROU au 07 72 41 01 29 spécialiste Centre-ville d'Angers, quartiers de la Gare, la Madeleine, Doutre, Lafayette, Visitation, place du lycée, Quinconce, Saint Léonard, Jeanne d'Arc, Lac de Maine, Belle-beille, Avrillé, Saint Barthélemy, Trélazé ... pour trouver votre solution immobilière en Résidence principale ou secondaire, Défiscalisation, Pinel, LMNP, Location, Gestion immobilière. "Les informations sur les risques auxquels ce bien est exposé sont disponibles sur le site Géorisques : www.georisques.gouv.fr" Copropriété de 31 lots (Pas de procédure en cours).
- Type de bien : Appartement
- Surface : 98 m²
- Localisation : France - pays-de-la-loire - Maine et Loire
- Ville : ANGERS
- Code postal : 49100
- Annonce mise à jour le 10/06/2025






