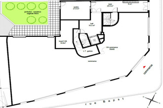
BOBIGNY (93) Local commercial
33 500 € / mois
Charges comprises
Pro / Agence
Voir l'annonce



