Vente Local commercial 71000, Mâcon france 1 080 000 €
Descriptif du bien
BÂTIMENT ARTISANAL NEUF MACON (71000) EMPLACEMENT STRATÉGIQUE Autoroute A6/A40
A VENDRE OU A LOUER
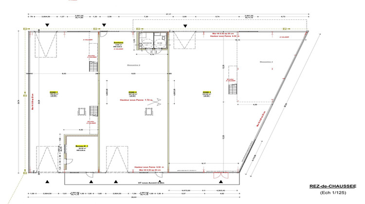
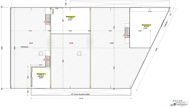
Découvrez ce bâtiment artisanal flambant neuf (construction 2023-2024) d'une surface d'environ 900 m² au sol , édifié sur 2 320 m² de terrain, situé sur la commune de Mâcon (71000).
Idéalement implanté à proximité immédiate de la gare, de l'autoroute A6/A40 et de la gare TGV, il bénéficie d'un emplacement stratégique offrant une excellente visibilité et accessibilité.
Entièrement viabilisé (électricité, eau, fibre optique), ce bien est clé en main et parfaitement équipé pour accueillir votre future activité :
Quelques travaux extérieurs restent à finaliser
(accompagnement possible).
? 4 chambres froides
? Vestiaires et sanitaires modernes
? Bureaux lumineux et fonctionnels
? Plusieurs sas de réception marchandises
? Espaces conçus pour le confort et l'efficacité de vos collaborateurs
Tout est prêt pour installer votre entreprise immédiatement dans un environnement moderne, performant et parfaitement adapté aux professionnels exigeants.
Idéal investisseurs également.
? Emplacement idéal: sur un axe passant, proche des grands axes autoroutiers et des transports (gare et TGV).
? Construction récente 2023-2024
? Pour tout renseignement, contactez :
Malika ZIRANE TERACYTE Immobilier
? Enregistrée au RSAC de Bourg-en-Bresse sous le n° 522 842 186
- Type de bien : Local commercial
- Surface : 898 m²
- Localisation : France - Bourgogne-Franche-Comté - Saône-et-Loire
- Ville : Mâcon
- Code postal : 71000
- Annonce créée le 13/02/2026



