Vente Viager 75018, PARIS 18 france 1 195 000 €
Descriptif du bien
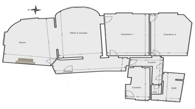
Situé au coeur du quartier prisé de Lamarck-Caulaincourt, cet appartement plein de potentiel vous offre une opportunité unique d'acquérir un bien de qualité. Installé au deuxième étage d'un bel immeuble haussmannien, il se distingue par ses volumes généreux et son charme de l'ancien. D'une surface de 87,31 mètres carrés, cet appartement se compose d'une entrée, d'un double séjour lumineux avec deux balcons, d'une cuisine indépendante aménagée, de deux belles chambres avec balcon, de WC séparés et d'une salle de bains équipée d'une baignoire et d'une douche. Vous apprécierez la hauteur sous plafond généreuse de 2,90 mètres, ainsi que les détails d'époque tels que les moulures et le parquet en point de Hongrie. Immeuble en excellent état, nombreux travaux récents effectués dans la copropriété. A visiter ! (3.02 % honoraires TTC à la charge de l'acquéreur.)
- Type de bien : Viager
- DPE : E - 231 à 330 kWh/².an
- GES : E - 36 à 55 kg eq CO2/².an
- Surface : 87 m²
- Localisation : France - ile-de-france - Paris
- Ville : PARIS 18
- Code postal : 75018
- Annonce créée le 03/03/2026









