Vente Terrain 91170, Viry-Châtillon france 148 000 €
Descriptif du bien
Iad France - Ronnie Garcia vous propose : RETOUR DU PRET A TAUX 0% !
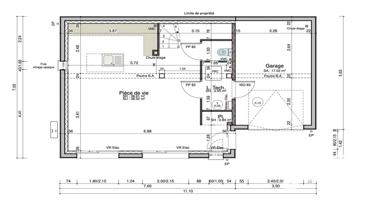
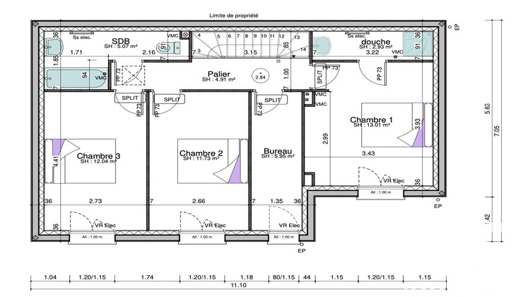
Secteur Viry-Chatillon plateau, voie de compiègne, un terrain à bâtir Viabilisé de 266 m² en lotissement
Façade 14,56m, emprise au sol 30%, R + 1+Combles possible, sous-sol total possible
Il faudra compter en plus du prix du terrain : le prix de la maison, les raccordements intérieurs, l'évacuation des terres, les fondations élargies, le puisard pour évacuation des eaux pluviales
Projet déjà monté et validé par le constructeur (L. D.T Les Demeures Traditionnelles Viry-Chatillon, voir photos)
Contactez moi pour votre projet Terrain + maison
Honoraires d'agence à la charge du vendeur.
Bien non soumis au DPE. Les informations sur les risques auxquels ce bien est exposé, y compris l'obligation légale de débroussaillement, sont disponibles sur le site Géorisques : http://www.georisques.gouv.fr.
La présente annonce immobilière a été rédigée sous la responsabilité éditoriale de M Ronnie Garcia mandataire indépendant en immobilier (sans détention de fonds), agent commercial de la SAS I@D France immatriculé au RSAC de EVRY sous le numéro 524955945, titulaire de la carte de démarchage immobilier pour le compte de la société I@D France SAS.Informations LOI ALUR : Honoraires charge vendeur. (gedeon_6727_33045802)
- Type de bien : Terrain
- Surface : 266 m²
- Localisation : France - ile-de-france - Essonne
- Ville : Viry-Châtillon
- Code postal : 91170
- Annonce créée le 16/04/2026




