Vente Terrain 69100, Villeurbanne france 299 000 €
Descriptif du bien
Villeurbanne - Impasse Aynard - Terrain constructible de 299 m² avec permis purgé.
Emplacement central et recherché, à la frontière de Lyon 3 et à proximité du quartier de la Villette / La Part-Dieu, découvrez ce terrain constructible de 299 m², situé Impasse Aynard à Villeurbanne.
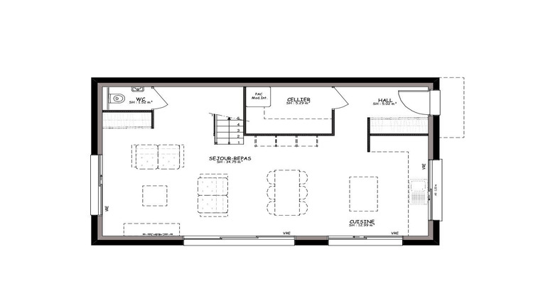
Ce terrain bénéficie d'un permis de construire purgé de tout recours au 26 juin 2025, autorisant la réalisation d'une maison individuelle de 118,8 m² de surface de plancher.
Le secteur offre un cadre de vie calme et résidentiel, tout en restant parfaitement connecté :
À 20 minutes à pied de la Part-Dieu
À 16 minutes de l'arrêt de métro République Villeurbanne
À proximité immédiate des commerces, écoles et services
Les raccordements en eau et assainissement sont à prévoir par les futurs propriétaires.
Les + :
Emplacement central entre Villeurbanne et Lyon 3e
Terrain plat et bien orienté
Permis de construire purgé (gain de temps et de sécurité)
Quartier résidentiel, proche des commodités et transports
Proximité immédiate du quartier de la Villette et de la Part-Dieu
Prix : 299,000 FAI
Une opportunité rare pour construire dans un secteur dynamique tout en profitant d'un environnement paisible.
À découvrir sans tarder, contactez-nous au 06 35 40 57 71 !
- Type de bien : Terrain
- Surface : 299 m²
- Localisation : France - Auvergne-Rhône-Alpes - Rhône
- Ville : Villeurbanne
- Code postal : 69100
- Annonce créée le 17/10/2025





