Vente Terrain 66300, Villemolaque france 89 000 €
Descriptif du bien
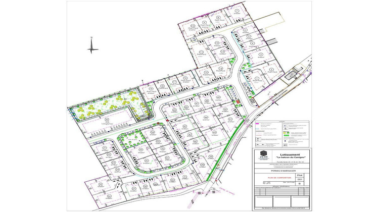
Iad France - Raphaëlle Pouthier (07 82 54 19 24) vous propose : TERRAINS À BÂTIR - VILLEMOLAQUE - 45 LOTS
Lot n°13 - 266 m² environ - RDC ou R + 1
Vous rêvez de construire votre futur foyer dans un cadre paisible et majestueux ? Découvrez 'Le Balcon du Canigou' :
À seulement 15 minutes de Perpignan, profitez de la douceur de vivre d'un village authentique avec une vue imprenable sur notre magnifique Canigou.
LES POINTS FORTS :
- 45 parcelles viabilisées (de 179 m² environ à 551 m² environ).
- Prix aménageur, sans surcoût d'intermédiaire.
- Tout budget : De 78 000 ¤ à 139 000 ¤.
- Vue panoramique sur le massif du Canigou.
CALENDRIER :
- Début des travaux : Juin 2026
- Livraison prévue : Décembre 2026
Que vous soyez primo-accédant ou que vous cherchiez votre future villa familiale, c'est l'emplacement idéal dans les Pyrénées-Orientales !
INTÉRESSÉ(E) ?
Les réservations commencent maintenant ! Contactez-moi pour recevoir :
- Le plan de lotissement
- La liste des parcelles encore disponibles
- Le détail des prix
- Le règlement de lotissement
Honoraires d'agence à la charge du vendeur. Bien non soumis au DPE. Les informations sur les risques auxquels ce bien est exposé sont disponibles sur le site Géorisques : www.georisques.gouv.fr. La présente annonce immobilière a été rédigée sous la responsabilité éditoriale de Mlle Raphaëlle Pouthier EI (ID 90492), mandataire indépendant en immobilier (sans détention de fonds), agent commercial de la SAS I@D France immatriculé au RSAC de PERPIGNAN sous le numéro 910272293, titulaire de la carte de démarchage immobilier pour le compte de la société I@D France SAS.
Retrouvez tous nos biens sur notre site internet. www.iadfrance.fr.Informations LOI ALUR : Honoraires charge vendeur. (gedeon_6727_33047204)
- Type de bien : Terrain
- Surface : 266 m²
- Localisation : France - Occitanie - Pyrénées-Orientales
- Ville : Villemolaque
- Code postal : 66300
- Annonce créée le 16/04/2026



