Vente Terrain 94800, Villejuif france 300 000 €
Descriptif du bien
Iad France - Charlotte SAGON vous propose : Terrain de 230 m² Villejuif à 5 minutes du M7 et M15 Louis Aragon
Terrain avec batiment existant en cours de permis en cours pour transformer le bâti en maison individuelle.
Situé à 5 minutes de Villejuif Louis Aragon M7 M15 et T7 vous bénéficiez d'un emplacement privilégié, zone pavillonnaire avec commerces, écoles et services à proximité immédiate.
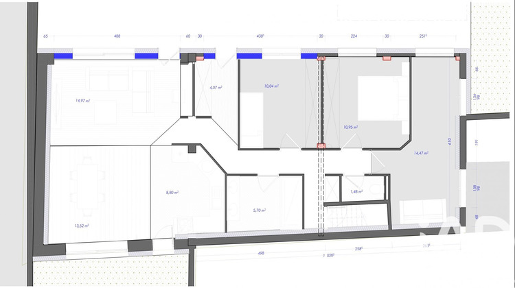
Projet de maison 100 m² avec jardin privé de 100 m² + place de parking.
Devis validé pour la construction : 100 000 euros.
Permis de construire en cours de validité, des plans disponibles sur demande et à titre indicatif.
Affaire à saisir rapidement !
Honoraires d'agence à la charge de l'acquéreur. Prix honoraires inclus : 300000 euros. Prix hors honoraires : 288000 euros. Honoraires TTC à la charge de l'acquéreur (4,17% du prix du bien hors honoraires) : 12000 euros.
Bien non soumis au DPE. Les informations sur les risques auxquels ce bien est exposé, y compris l'obligation légale de débroussaillement, sont disponibles sur le site Géorisques : http://www.georisques.gouv.fr.
La présente annonce immobilière a été rédigée sous la responsabilité éditoriale de Mme Charlotte SAGON mandataire indépendant en immobilier (sans détention de fonds), agent commercial de la SAS I@D France immatriculé au RSAC de Créteil sous le numéro 881276505, titulaire de la carte de démarchage immobilier pour le compte de la société I@D France SAS.
Informations LOI ALUR :
Honoraires charge acquéreur.
Prix hors honoraires : 288 000 ¤. (gedeon_6727_32729664)
- Type de bien : Terrain
- Surface : 230 m²
- Localisation : France - ile-de-france - Val de Marne
- Ville : Villejuif
- Code postal : 94800
- Annonce créée le 26/02/2026


