Vente Terrain 94440, Villecresnes france 170 000 €
Descriptif du bien
Iad France - Christophe Hadoux vous propose : Rare opportunité en zone résidentielle. Terrain à construire viabilisé, nu ou avec projet de construction accordé, mené par les Maisons Sésame. Plus de détails sur demande. Voir les photos.
Rare sur le marché, ce terrain constructible de 253 m² situé à Villecresnes offre une opportunité exceptionnelle de réaliser votre projet de construction sur mesure dans un cadre privilégié.
Idéalement situé dans le quartier résidentiel du Cerçay calme et recherché, ce terrain bénéficie d'une exposition est-ouest, permettant de profiter pleinement de la lumière naturelle tout au long de la journée.
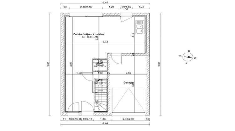
Caractéristiques du Terrain :
- Superficie totale : 253 m²
- Façade sur rue : 11,50 m
- Surface constructible : 100 m² environ pour une maison individuelle R + 1 + comble (9 m au faîtage) + garage
Viabilité : raccordement au réseau d'électricité, d'eau potable et d'assainissement collectif.
Idéalement situé, ce terrain bénéficie d'un environnement paisible tout en étant proche des commodités
Honoraires d'agence à la charge du vendeur.
Bien non soumis au DPE. Les informations sur les risques auxquels ce bien est exposé, y compris l'obligation légale de débroussaillement, sont disponibles sur le site Géorisques : http://www.georisques.gouv.fr.
La présente annonce immobilière a été rédigée sous la responsabilité éditoriale de M Christophe Hadoux mandataire indépendant en immobilier (sans détention de fonds), agent commercial de la SAS I@D France immatriculé au RSAC de Créteil sous le numéro 884497249, titulaire de la carte de démarchage immobilier pour le compte de la société I@D France SAS.
Informations LOI ALUR :
Honoraires charge vendeur. (gedeon_6727_32270635)
- Type de bien : Terrain
- Surface : 253 m²
- Localisation : France - ile-de-france - Val de Marne
- Ville : Villecresnes
- Code postal : 94440
- Annonce créée le 11/12/2025





