Vente Terrain 44330, VALLET france 89 900 €
Descriptif du bien
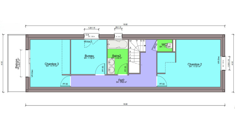
Située en centre-bourg de Vallet dans une rue calme et à proximité immédiate de toutes les commodités : Parcelle de terrain d'environ 121m² avec bâtisse (à réhabiliter ou à démolir) permettant une construction neuve d'environ 106m². Les plans proposés (suggestion) permettent d'envisager une maison avec étage proposant 3 chambres (dont 1 suite parentale avec salle d'eau) - un bureau - une pièce de vie d'environ 30m² - un cellier - une salle de bains - 2 wc - une courette à l'avant et une terrasse à l'arrière... Coût de revient de l'opération avec construction ne dépassant pas les 290.000 euros en tout. Permis de construire déjà accordé et transmissible. Plans disponibles. Tout à l'égout dans la rue - Tableau électrique existant... (6.39 % honoraires TTC à la charge de l'acquéreur.)
- Type de bien : Terrain
- Surface : 100 m²
- Localisation : France - pays-de-la-loire - Loire Atlantique
- Ville : VALLET
- Code postal : 44330
- Annonce créée le 30/09/2025








