Vente Terrain 17430, TONNAY CHARENTE france 120 000 €
Descriptif du bien
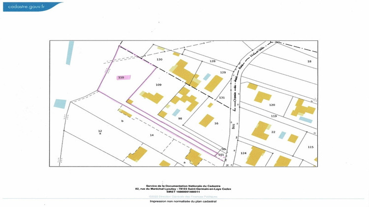
TONNAY CHARENTE à environ 3 km du centre ville. En exclusivité Capifrance, magnifique terrain d'environ 2245 m² composé d'un chemin d’accès de 110 ml et d'une surface utile d'environ 1800 m². La viabilisation restant à prévoir, eau, électricité et tout à l’égout en limite de propriété à l'entrée du chemin. Points fort de cette belle parcelle: le cadre proposé, la proximité du centre ville, d'un centre commercial et de l'accès à la voie rapide pour La Rochelle ou Saintes. Les honoraires sont à la charge du vendeur. Les informations sur les risques auxquels ce bien est exposé sont disponibles sur le site Géorisques : www. georisques. gouv. fr. Réseau Immobilier CAPIFRANCE - Votre agent commercial (RSAC N°511 017 105 - Greffe de SAINTES) Vincent BALLANGER Entrepreneur Individuel 06 15 42 42 12 - Réf.887044
- Type de bien : Terrain
- Surface : 2245 m²
- Localisation : France - Nouvelle-Aquitaine - Charente Maritime
- Ville : TONNAY CHARENTE
- Code postal : 17430
- Annonce créée le 18/01/2025



