Vente Terrain 14610, THAON france 75 000 €
Descriptif du bien
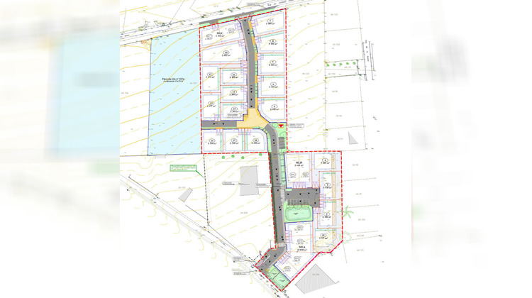
Dans le lotissement "LE CHATEAU D'EAU" à THAON, composé de 26 parcelles de terrain à bâtir avec libre choix de constructeur. ATTENTION, il nous RESTE que quelques parcelles disponibles. Le lot N°B1 pour 344 m² et lot N°B2 pour 315 m² , elles se situent à l'écart des regards. Frais de notaire réduit! Idéal pour construire sa résidence principale ou investissement locatif. Surface de plancher maximum 166 m². Idéalement situé entre Caen et la mer, cette commune dynamique avec bon nombre d'activités sportive et culturelle, ou l'on peut trouver, notamment: -Des commerces de type: Boulangerie, bar-tabac, garage, Carrefour contact, -Une école: Maternel et primaire. Les terrains seront livrable fin octobre 2026, viabilisés pour déposer un permis immédiat. Informations complètes en agence. VENEZ HABITER SUR LA COMMUNE DE THAON !!






