Vente Terrain 20140, Sollacaro france 120 000 €
Descriptif du bien
Iad france - thomas garrido vous propose : sollacaro ! À moins de 25 minutes de propriano et de ses plages !
terrain viabilisé d'une surface de 750 m² environ avec une vue dégagée sur les collines environnantes.
permis d'amenager unilot et permis de construire accordés !
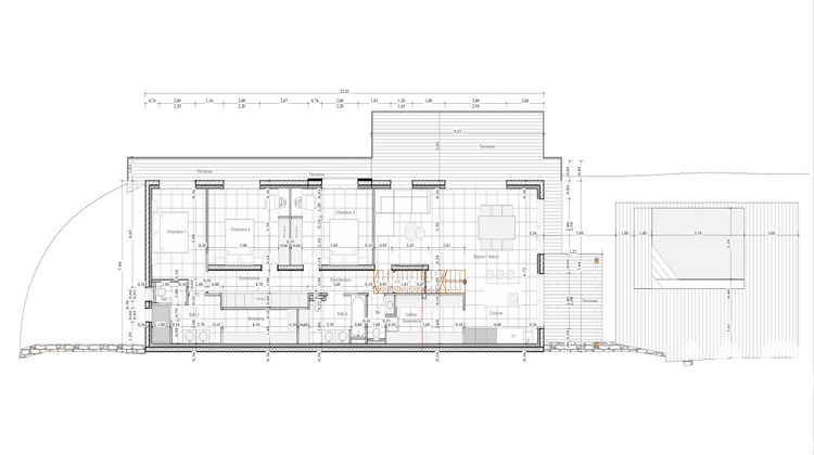
le permis de construire porte sur une maison de 5 pièces, d'une surface habitable de 150 m² environ (140 m² en rez de jardin + 10 m² en r + 1) avec un carport et un garage à vélos.
une opportunité très rare dans ce secteur !
a visiter sans tarder !
honoraires d'agence à la charge du vendeur.
bien non soumis au dpe. Les informations sur les risques auxquels ce bien est exposé, y compris l'obligation légale de débroussaillement, sont disponibles sur le site géorisques : http://www.georisques.gouv.fr.
la présente annonce immobilière a été rédigée sous la responsabilité éditoriale de m thomas garrido mandataire indépendant en immobilier (sans détention de fonds), agent commercial de la sas i@d france immatriculé au rsac de ajaccio sous le numéro 909166423, titulaire de la carte de démarchage immobilier pour le compte de la société i@d france sas.Informations LOI ALUR : Honoraires charge vendeur. (gedeon_6727_32304407)
- Type de bien : Terrain
- Surface : 750 m²
- Localisation : France - Corse - Corse du sud
- Ville : Sollacaro
- Code postal : 20140
- Annonce créée le 16/04/2026





