Vente Terrain 83690, Salernes france 157 000 €
Descriptif du bien
Iad France - Vanessa Guipponi vous propose : SALERNES (83690) - TERRAIN A BATIR 6400 m² AVEC PERMIS DE CONSTRUIRE ACCORDE ET MODIFIABLE - LIBRE CONSTRUCTEUR
Dans un quartier calme et résidentiel, proche du site classé de St Barthélemy, découvrez ce magnifique terrain comprenant une partie plate avec vue dégagée sur le village de Tourtour et sur les oliviers et une partie en restanques avec jolis murs de pierres pour le chemin d'accès qui sera à créer.
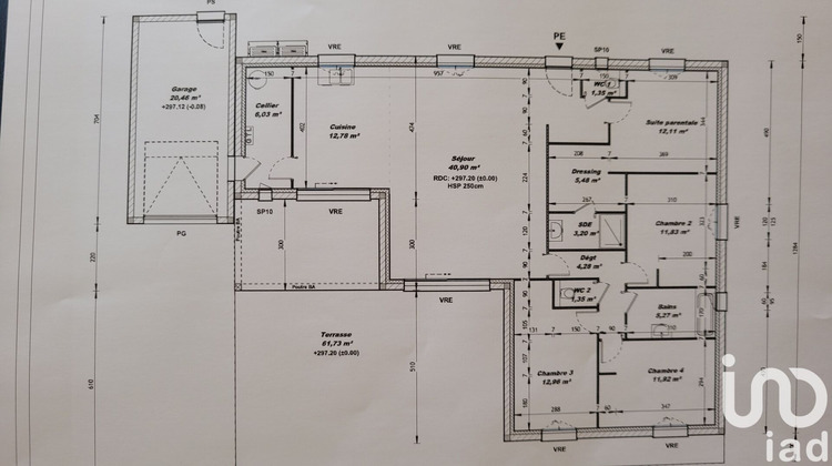
Projet de construction dont le permis de construire est accordé pour une maison de plain-pied en L d'environ 130 m² habitables comprenant un séjour avec cuisine ouverte, une suite parentale et trois chambres, terrasse couverte et garage, un pool-house et une piscine.
Le permis de construire est modifiable, possibilité d'extension de 40 %, faire un étage ou plus petite superficie.
LIBRE CONSTRUCTEUR. Etude G1 en cours.
Terrain raccordé au tout à l'égout et électricité en bordure sur le plateau.
Le projet fini est estimé aux alentours de 525000¤.
La maison sera livrée terminée, sauf peintures et cuisine. Elle comprendra le carrelage au sol, les sanitaires, chauffage gainable, faïences murales en SDE et SDB, toiture 4 pans, double rang de génoise, tuile terre cuite aspect vieillie, conduit feu et souche en attente, la terrasse couverte carrelée et les menuiseries de couleur blanche avec volets roulants (centralisation et domotique).
MAISON : environ 245 000 ¤
ADAPTATION AU SOL (fouilles, fondations, vide sanitaire etc. ) sous réserve de la nature du sol et l'étude G2 : 15 000 ¤
PARTIE GARAGE : garage en toit plat avec la porte de garage et la communication avec la maison : 40 000 ¤
PISCINE Cela va dépendre du type de piscine (coque, liner ou traditionnelle) en moyenne : 35 000 ¤
TERRASSE NON COUVERTE : devant la maison, sur fouilles, fondations et plancher. Elle sera carrelée : 30 000 ¤ (moins cher si une simple dalle sur radier)
POOL-HOUSE : avec carrelage et enduit de façade : 20 000 ¤
PARTIE FRAIS ANNEXES ET RESEAUX PUBLICS / TAXES TERRASSEMENT Comprenant l'accès à la parcelle, le terrassement de la pleine masse, le raccordement aux réseaux, le drainage périphérique, la noue paysagère etc. : 55 000 ¤
VIABILISATION et TAXE
Pour les postes eau, éléctricité, telecom et taxe égout ainsi que le poteau incendie (sur base devis) : 15 000 ¤
PARTIE FONCIER TERRAIN : 180 000 ¤
FRAIS DE NOTAIRE : Env. 15 000 ¤
Contactez-moi pour tout renseignement.
Honoraires d'agence à la charge du vendeur.
Bien non soumis au DPE. Les informations sur les risques auxquels ce bien est exposé, y compris l'obligation légale de débroussaillement, sont disponibles sur le site Géorisques : http://www.georisques.gouv.fr.
La présente annonce immobilière a été rédigée sous la responsabilité éditoriale de Mme Vanessa Guipponi mandataire indépendant en immobilier (sans détention de fonds), agent commercial de la SAS I@D France immatriculé au RSAC de DRAGUIGNAN sous le numéro 888739448, titulaire de la carte de démarchage immobilier pour le compte de la société I@D France SAS.
Informations LOI ALUR :
Honoraires charge vendeur. (gedeon_6727_31076289)
- Type de bien : Terrain
- Surface : 6447 m²
- Localisation : France - provence-alpes-cote-d-azur - Var
- Ville : Salernes
- Code postal : 83690
- Annonce mise à jour le 12/02/2026





