Vente Terrain 57070, Saint-Julien-Lès-Metz france 239 000 €
Descriptif du bien
Iad France - Natacha Thibaut vous propose : Situé sur la commune très recherchée de Saint-Julien-lès-Metz, découvrez ce beau terrain à bâtir d'une superficie de 726 m², idéal pour concrétiser votre projet de construction.
? Environnement et localisation :
Implanté dans une rue calme et agréable, ce terrain bénéficie d'un cadre de vie paisible, tout en offrant un accès rapide à Metz et à l'ensemble des commodités : écoles, commerces, transports et axes autoroutiers.
Appréciée pour sa qualité de vie, la commune de Saint-Julien-lès-Metz séduit par son environnement résidentiel recherché, son dynamisme et sa proximité immédiate avec le centre-ville et les zones commerciales, le tout dans un cadre verdoyant.
Caractéristiques du terrain :
oSuperficie : 726 m²
oTerrain non viabilisé
oIdéal pour un projet de construction personnalisé
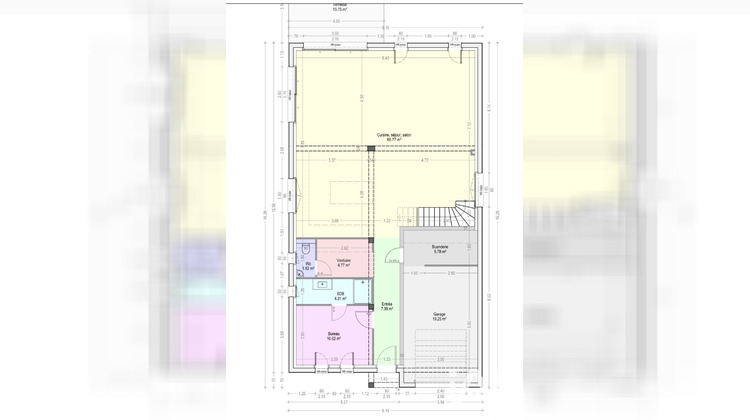
Pour vous aider à vous projeter, des plans de construction ainsi que des visuels 3D sont disponibles.
Une belle opportunité pour construire la maison de vos rêves dans un secteur calme et recherché !
Honoraires d'agence à la charge du vendeur.
Bien non soumis au DPE. Les informations sur les risques auxquels ce bien est exposé, y compris l'obligation légale de débroussaillement, sont disponibles sur le site Géorisques : http://www.georisques.gouv.fr.
La présente annonce immobilière a été rédigée sous la responsabilité éditoriale de Mme Natacha Thibaut mandataire indépendant en immobilier (sans détention de fonds), agent commercial de la SAS I@D France immatriculé au RSAC de Metz sous le numéro 977759679, titulaire de la carte de démarchage immobilier pour le compte de la société I@D France SAS.Informations LOI ALUR : Honoraires charge vendeur. (gedeon_6727_32892075)




