Vente Terrain 69450, SAINT CYR AU MONT D OR france 649 900 €
1 / 6
Descriptif du bien
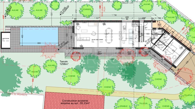
SAINT-CYR-AU-MONT-D'OR Situé à 10 minutes à pieds du centre du village, dans un environnement calme, la régie Carron vous propose ce très beau terrain de 1258m2 avec dépendance existante et permis de construire purgé pour une magnifique maison d'environ 208m2 avec piscine et dépendance. (documents disponibles sur demande).
- Type de bien : Terrain
- Surface : 1258 m²
- Localisation : France - Auvergne-Rhône-Alpes - Rhône
- Ville : SAINT CYR AU MONT D OR
- Code postal : 69450
- Annonce mise à jour le 03/05/2025





