Vente Terrain 91530, Saint-Chéron france 79 900 €
1 / 3
Descriptif du bien
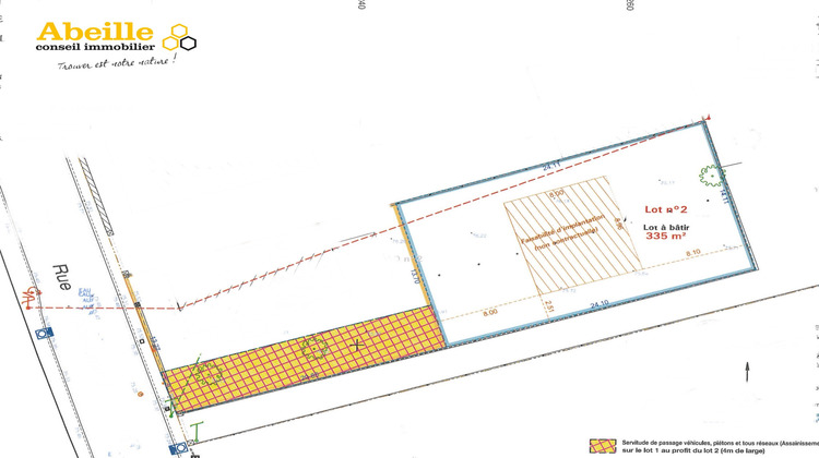
Ce terrain d'une superficie de 335 m2, situé en zone UCV, bénéficie d'un emplacement à proximité immédiate des commerces, des écoles, des transports en commun et de l'ensemble des services essentiels. De configuration plane et implanté en lot arrière, il dispose d'une façade d'environ 14 mètres. Le terrain est soumis aux prescriptions des Bâtiments de France. Dossier complet sur demande.Bien rare à la vente.
+ de biens sur www.abeille-conseilimmobilier.com
- Type de bien : Terrain
- GES : A -< 6 kg eq CO2/².an
- Surface : 335 m²
- Localisation : France - ile-de-france - Essonne
- Ville : Saint-Chéron
- Code postal : 91530
- Annonce créée le 31/12/2025


